EasyManua.ls Logo

Midea Elite Series - Heating;Cooling Wiring Diagram (MSE-18 HR)

Midea Elite Series
32 pages
Print Icon
To Next Page IconTo Next Page
To Next Page IconTo Next Page
To Previous Page IconTo Previous Page
To Previous Page IconTo Previous Page
Loading...
19
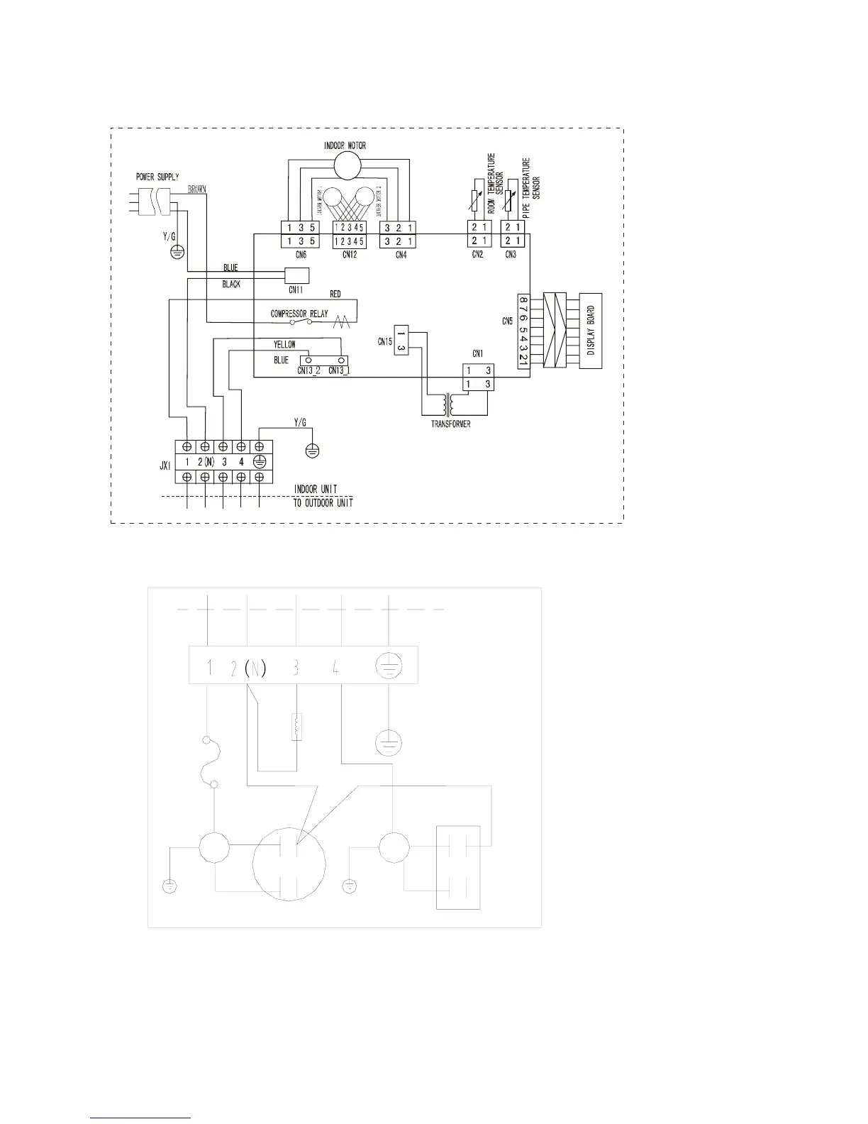
6.2.2.2 MSE-18HR
INDOOR UNIT
OUTDOOR UNIT
RED
BLACK
BLUE
BLACK
Y&G
COMPRESSOR
C
S
R
WHITE
BLUE
COMPRESSOR
CAPACITOR
FAN
MOTOR
RED
BLUE
FAN
CAPACITOR
BLACK
BLUE
4-WAY
Y/G
OVERLOAD
RELAY

Related product manuals