EasyManua.ls Logo

Midea M3OD-21HFN1-Q - Page 18

Midea M3OD-21HFN1-Q
72 pages
Print Icon
To Next Page IconTo Next Page
To Next Page IconTo Next Page
To Previous Page IconTo Previous Page
To Previous Page IconTo Previous Page
Loading...
Service manual DM15-01.01.11-01en
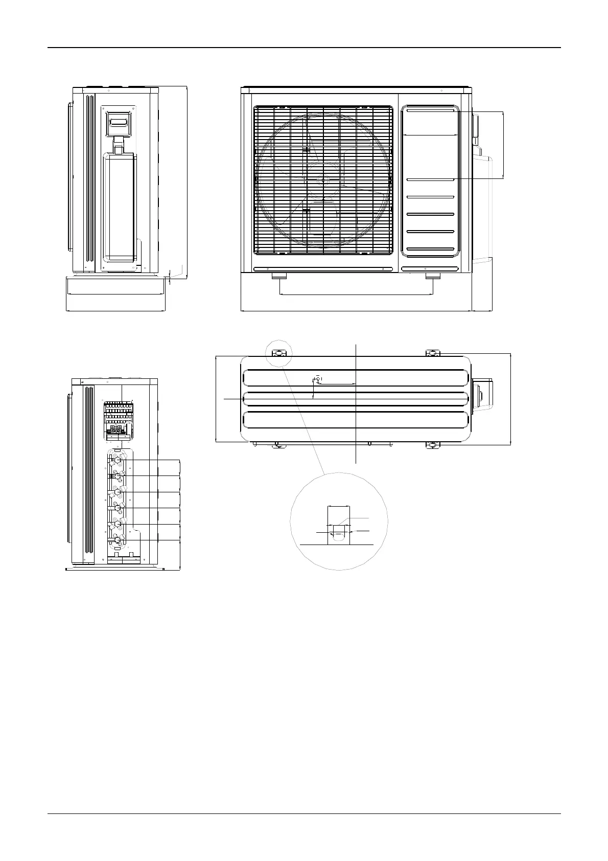
18 Multi DC inverter R410A. Outdoor unit
M3OD-21HFN1-Q, M3OD-26HFN1-Q
560 W1
H
6
D1 335
D2 360
845 W
313
D3
335
D1
R6
R5
A1
22
A2
50
B1
120
110
B2
700
W2
73
58
58
58 58
58
110
H1
H2
200.7
243.6
L1
L2

Related product manuals