EasyManua.ls Logo

Midea MC-SU30-RN1L

Midea MC-SU30-RN1L
101 pages
To Next Page IconTo Next Page
To Next Page IconTo Next Page
To Previous Page IconTo Previous Page
To Previous Page IconTo Previous Page
Loading...
1
Aqua Tempo Super II
201902 11
Part 1 - General Information
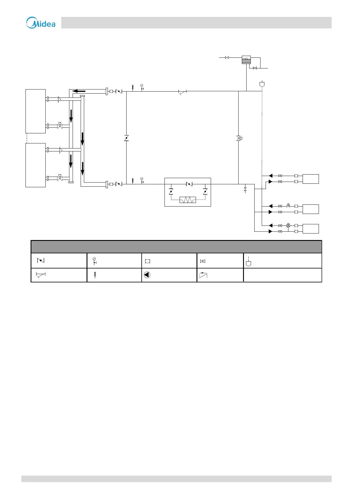
Figure 1-5.4: Space heating and space cooling through fan coil unit (customized unit with built-in hydronic module)
Master unit
Expansion tank
Water replenishment valve
Water discharge valve
Differential pressure
by-pass valve
Drain valve
Two-way valve
Three-way valve
FCU
Auxiliary electric heater
unit
unit
Y-type filter,
requiring≥ 16 mesh
Slave unit
Max 16 units
FCU
FCU
Two-way
valve
Two-way
valve
One-way
valve
One-way
valve
Stop valve Pressure gauge Gate valveFlexible joint
Y-shaped filter Thermometer Circulating pump Check valve
Automatic discharge valve
Legend

Other manuals for Midea MC-SU30-RN1L

Related product manuals