EasyManua.ls Logo

Midea MCH-90B65 - Installation Instruction

Midea MCH-90B65
32 pages
Go to English
Print Icon
To Next Page IconTo Next Page
To Next Page IconTo Next Page
To Previous Page IconTo Previous Page
To Previous Page IconTo Previous Page
Loading...
Installation instruction
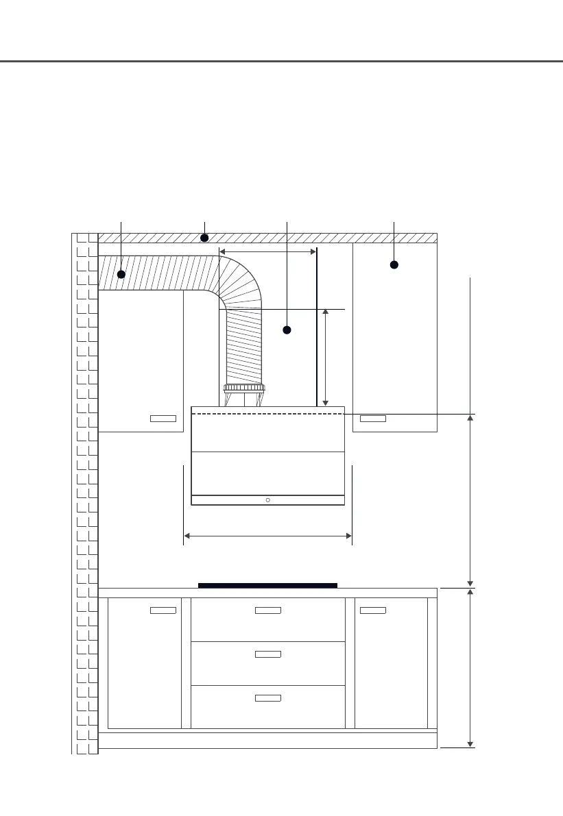
Determine location
Range hood should be installed horizontaly on the top of the stove,
the installation diagram is as follows:
905~915
482
800~850
C
upboard
C
himney
Suspended
ceiling
Exhaust pipe
430
Line for Installation
780~850
6

Related product manuals