EasyManua.ls Logo

Midea MCHSU-18PHH2 - Page 8

Midea MCHSU-18PHH2
90 pages
Print Icon
To Next Page IconTo Next Page
To Next Page IconTo Next Page
To Previous Page IconTo Previous Page
To Previous Page IconTo Previous Page
Loading...
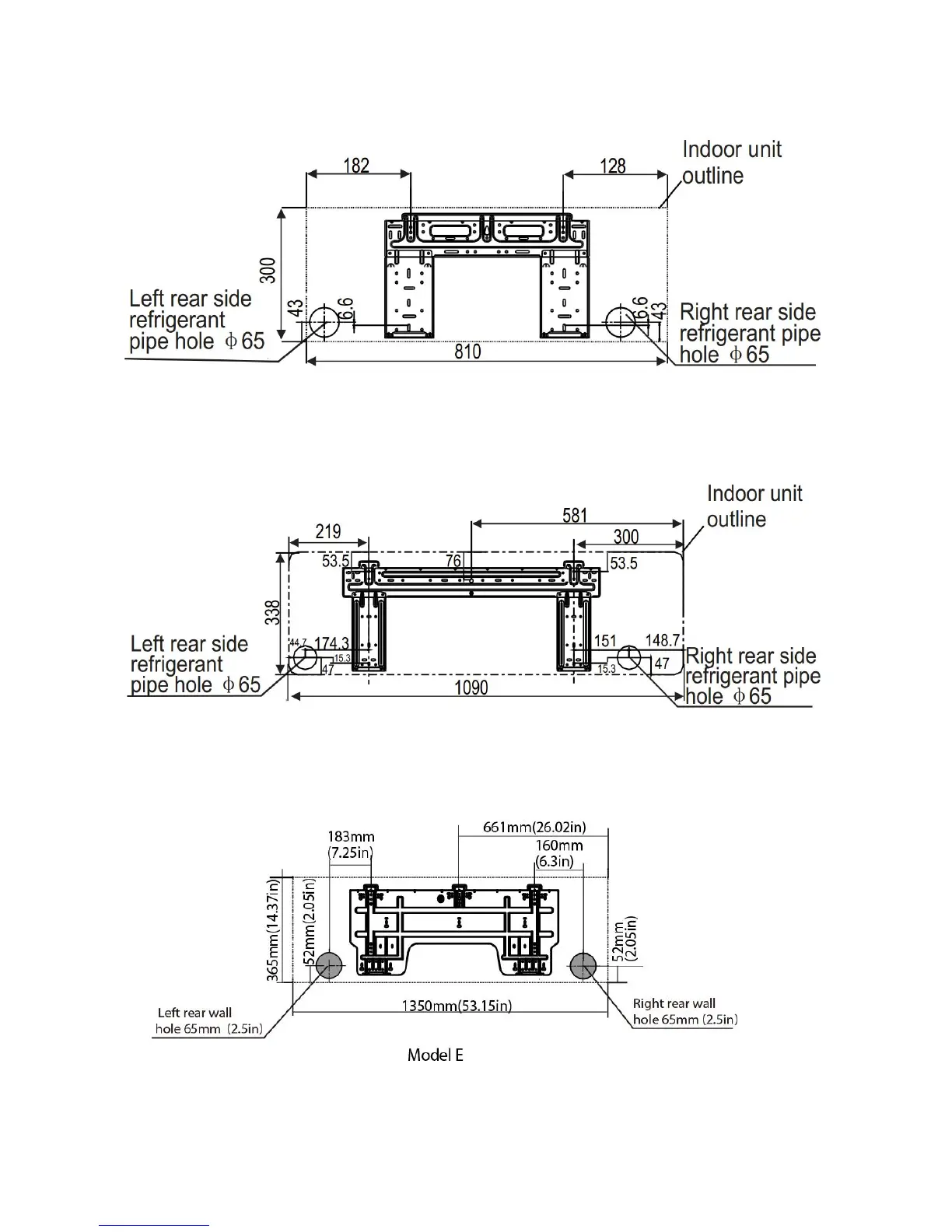
For 9k & 12k:
For 18k & 24k:
For 30k & 36k:

Table of Contents

Related product manuals