EasyManua.ls Logo

Midea MDV-335(12)W/D2DN1(B) - Page 89

Midea MDV-335(12)W/D2DN1(B)
164 pages
Print Icon
To Next Page IconTo Next Page
To Next Page IconTo Next Page
To Previous Page IconTo Previous Page
To Previous Page IconTo Previous Page
Loading...
MCAC-VTSM-2015-09 R410A All DC Inverter V4+S Series 60Hz
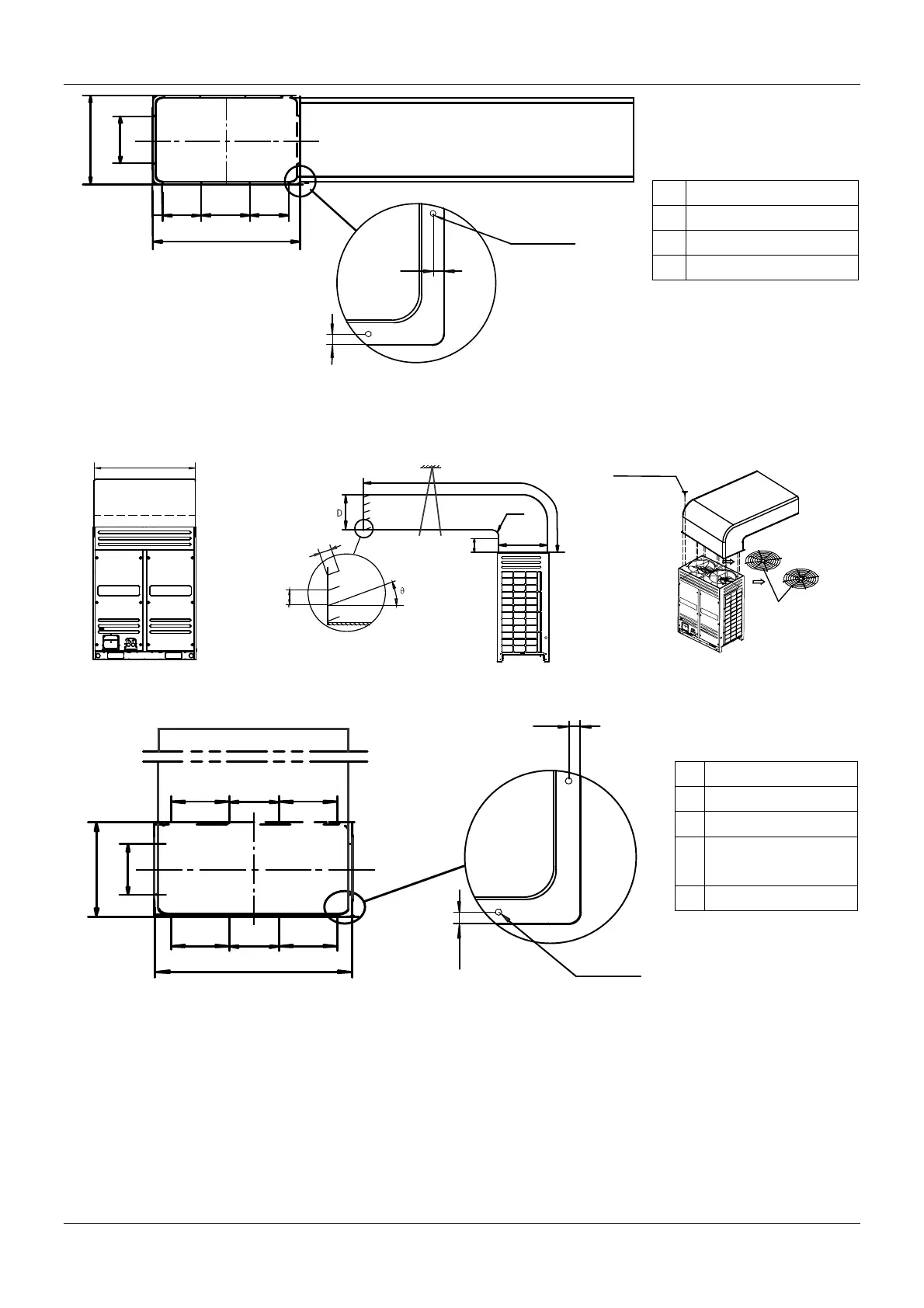
Installation 87
A A300(11-3/4)
B B250(9-7/8)
C C8000(314-15/16)
θ
θ≤15°
2.2 Installation of 12, 14, 16, 18HP
Example A
Unit: in.( mm)
A A300(11-3/4)
B B250(9-7/8)
C C8000(314-15/16)
D 725(28-9/16)D
760(29-15-16)
θ
θ≤15°
960
(37-13/16)
10
(3/8)
10
(3/8)
12-Φ3.2(Φ1/8)
243
(9-9/16)
393
(15-15/32)
765
(30-1/8)
243
(9-9/16)
330
(13)
1210(47-5/8)
A
ir outlet louver dimension (optional)
C
A
725
(28-9/16)
90
(3-9/16)
B
100(3-15/16)
Radius
S
upport
Remove the
two iron filter firstly
12
ST3
.
9
se
lf
-t
h
rea
di
ng screws
10
(3/8)
10
(3/8)
12-Φ3.2(Φ1/8)
393
(15-15/32)
765
(30-1/8)
1250(49-7/32_
411
(16-3/16)
411
(16-3/16)
213
(8.-3/8)
411
(16-3/16)
411
(16-3/16)
213
(8.-3/8)

Table of Contents

Related product manuals