EasyManua.ls Logo

Midea MDV-730(26)W/D2DN1(B) - Refrigerant Piping Length Permitted Value; Refrigerant Piping Selection

Midea MDV-730(26)W/D2DN1(B)
164 pages
Print Icon
To Next Page IconTo Next Page
To Next Page IconTo Next Page
To Previous Page IconTo Previous Page
To Previous Page IconTo Previous Page
Loading...
R410A All DC Inverter V4+S Series 60Hz MCAC-VTSM-2015-09
90 Installation
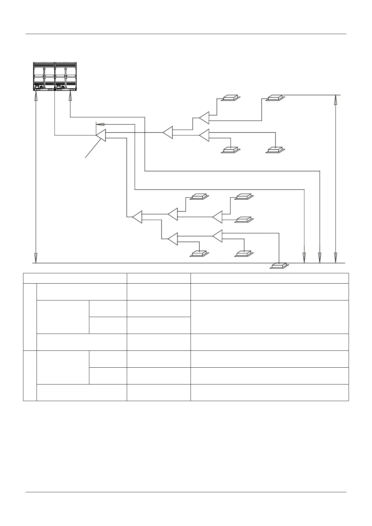
3. Refrigerant piping selection
3.1 Refrigerant piping length permitted value
Piping length
Permitted value
Piping
Piping length
Total piping length
1000m (3280ft)
(refer to note 1)
L1+(L2+L3+L4+L5+L6+L7+L8+L9)×2+a+b+c+d+e+f+g+h+i+j
Single piping
length
Actual
length
175m (574ft)
L1+L5+L8+L9+j
Equivalent
length
200m (656ft)
(refer to note 2)
Piping length from the first branch
joint to the farthest indoor unit
40/90m (131/295ft)
(refer to note 3)
L5+L8+L9+j
Level difference
Level difference
between indoor
unit and outdoor
unit
Outdoor unit
is up
70m (230ft)
(refer to note 4)
/
Outdoor unit
is down
110m (361ft)
(refer to note 5)
/
Level difference between indoor
units
30m (98ft)
/
Note:
The indoor units should be installed as possible as equal in the both sides of the U-shape branch joint.
1. When counting the total piping length, the actual pipe length branch joints should be double:
Total piping length= L1+(L2+L3+L4+L5+L6+L7+L8+L9)×2+a+b+c+d+e+f+g+h+i+j1000m (3280ft)
2. The equivalent length of each branch joint is 0.5m (1.64ft).
3. The allowable piping length from the first branch joint to the farthest indoor unit should be equal to or less than 40m (131ft), but
when the following conditions are all met, the allowable length can be extended to 90m (295ft).
The piping length from each indoor unit to the nearest branch joint should be less than 40m (131ft). (a, b, c, d, e, f, g, h, i,
j40m (131ft))
N1
(140)
N3
(140)
N5
(140)
N6
(71)
N7
(71)
N9
(56)
N8
(140)
N2
(140)
N4
(140)
N10
(56)
A
B
D
E
F
G
H
I
C
a b
c
e f
g
h
i j
d
L1
L2
L5
L7
L9
L8
L6
L3
L4
Outdoor unit
(one or more outdoor units)
The first branch joint
Max. level difference between outdoor and indoor unit is110m
Max. equivalent piping length from the first indoor
branch joint to the farthest indoor unit is 90m
Max. equivalent single piping length is 200m
Max. level difference between indoor units is 30m
Indoor unit

Table of Contents

Related product manuals