EasyManua.ls Logo

Midea MEHSU-12CHC2 - Page 21

Midea MEHSU-12CHC2
81 pages
Print Icon
To Next Page IconTo Next Page
To Next Page IconTo Next Page
To Previous Page IconTo Previous Page
To Previous Page IconTo Previous Page
Loading...
19
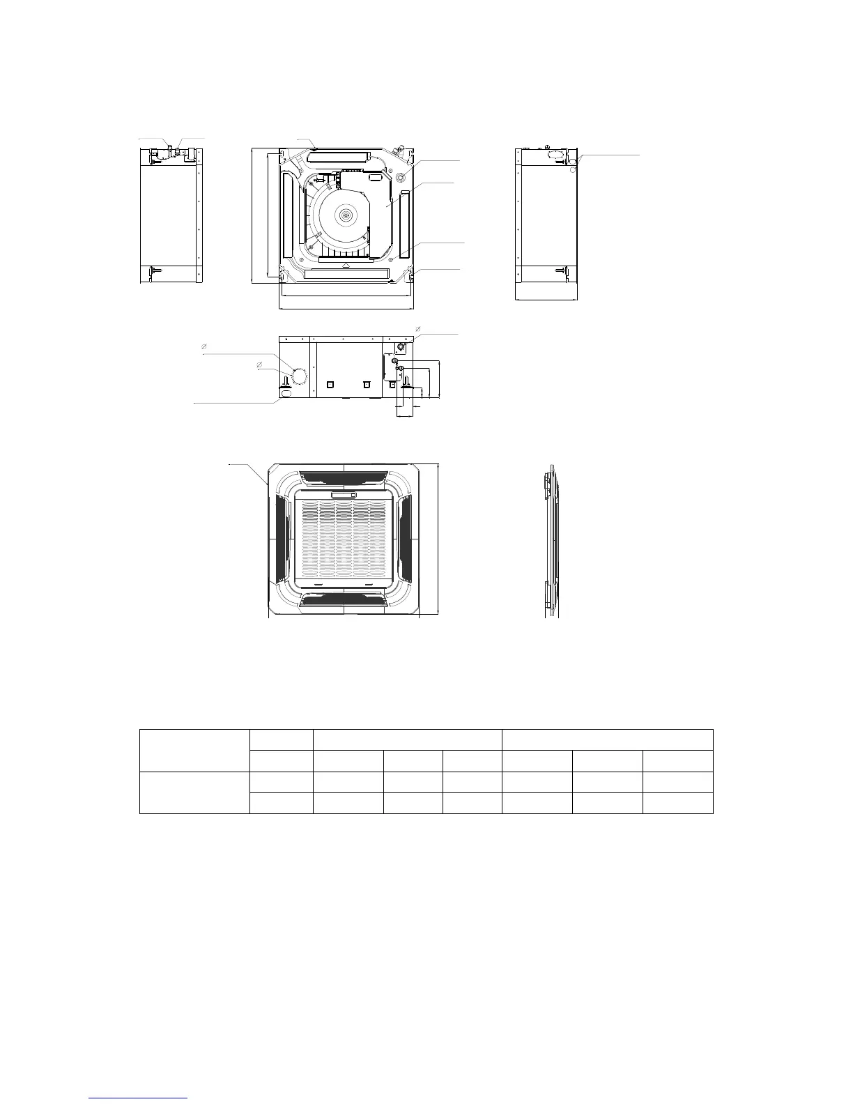
Cassette Units(9K, 12K, 18K)
Panel
Gas side
Liquid side
4-install hanger
Body
Drain pipe32
Fresh air intake
65
647
Drain hole
( for Service )
545
570
260
68
42
157
126
44
Wiring connection port
75
E-parts box
4-Screw hole
(for install panel)
523
570
Wiring connection port
Capacity (Btu/h)
Body Panel
W D H W1 D1 H1
9K/12K/18K
mm 570 260 570 647 50 647
inch 22.44 10.24 22.44 25.47 1.97 25.47
22.44in
(21.46in)
10.24in
25.47in
(20.59in)
1-1/4in
2.95in
2.56in

Related product manuals