EasyManua.ls Logo

Midea MEHSU-12CHC2 - 4. Service Space

Midea MEHSU-12CHC2
81 pages
Print Icon
To Next Page IconTo Next Page
To Next Page IconTo Next Page
To Previous Page IconTo Previous Page
To Previous Page IconTo Previous Page
Loading...
25
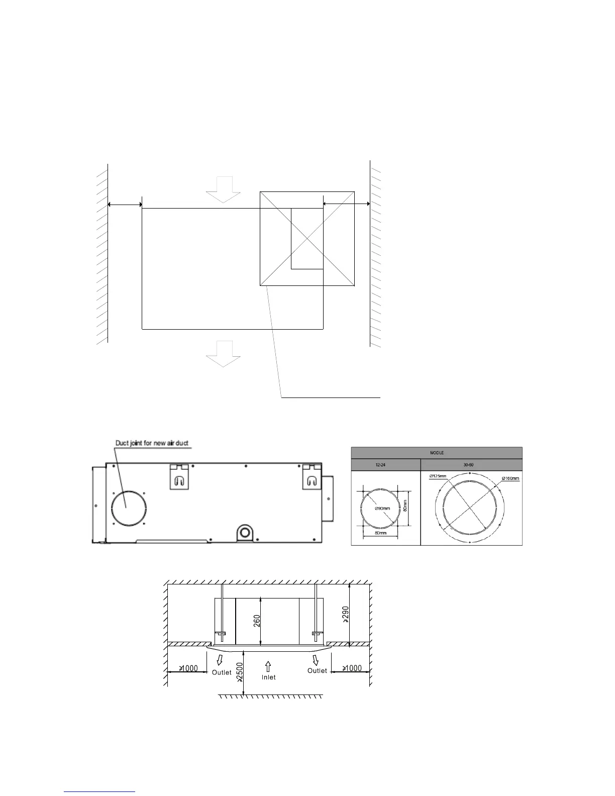
4. Service Space
4.1 Indoor Unit
Duct Units
Ensure enough space required for installation and maintenance.
200mm(7.87in) or more
300mm(11.81in) or more
600mmx600mm/23.62inx23.62in
Check orifice
All the indoor units reserve the hole to connect the fresh air pipe. The hole size as following
Cassette Units
Unit: mm/inch
39.3
98.43
11.42
39.3
10.24
6.30in
4.92in
3.15mm
3.54mm

Related product manuals