EasyManua.ls Logo

Midea MHC-V14W/D2RN1 - Page 11

Midea MHC-V14W/D2RN1
96 pages
Print Icon
To Next Page IconTo Next Page
To Next Page IconTo Next Page
To Previous Page IconTo Previous Page
To Previous Page IconTo Previous Page
Loading...
9
Make sure to fit the 3-way valve correctly. For more details, refer to 9.6.6 Connection for other components/For 3-way valve SV1.
8.3 Application 3
CAUTION
The unit can be configured so that at low outdoor temperatures, water is exclusively heated by the booster heater. This assures
that the full capacity of the heat pump is available for space heating.
Details on domestic hot water tank configuration for low outdoor temperatures (T4DHWMIN) can be found in 10.7 Field settings/How to
set the DHW MODE.
NOTE
If the volume of balance tank(9) is larger than 30L, the buffer tank(8) is unnecessary, otherwise the buffer tank(8) should be installed and the total
volume of balance tank and buffer tank should larger than 30L. The drain valve(6) should be installed at the lowest positon of the system.
NOTE
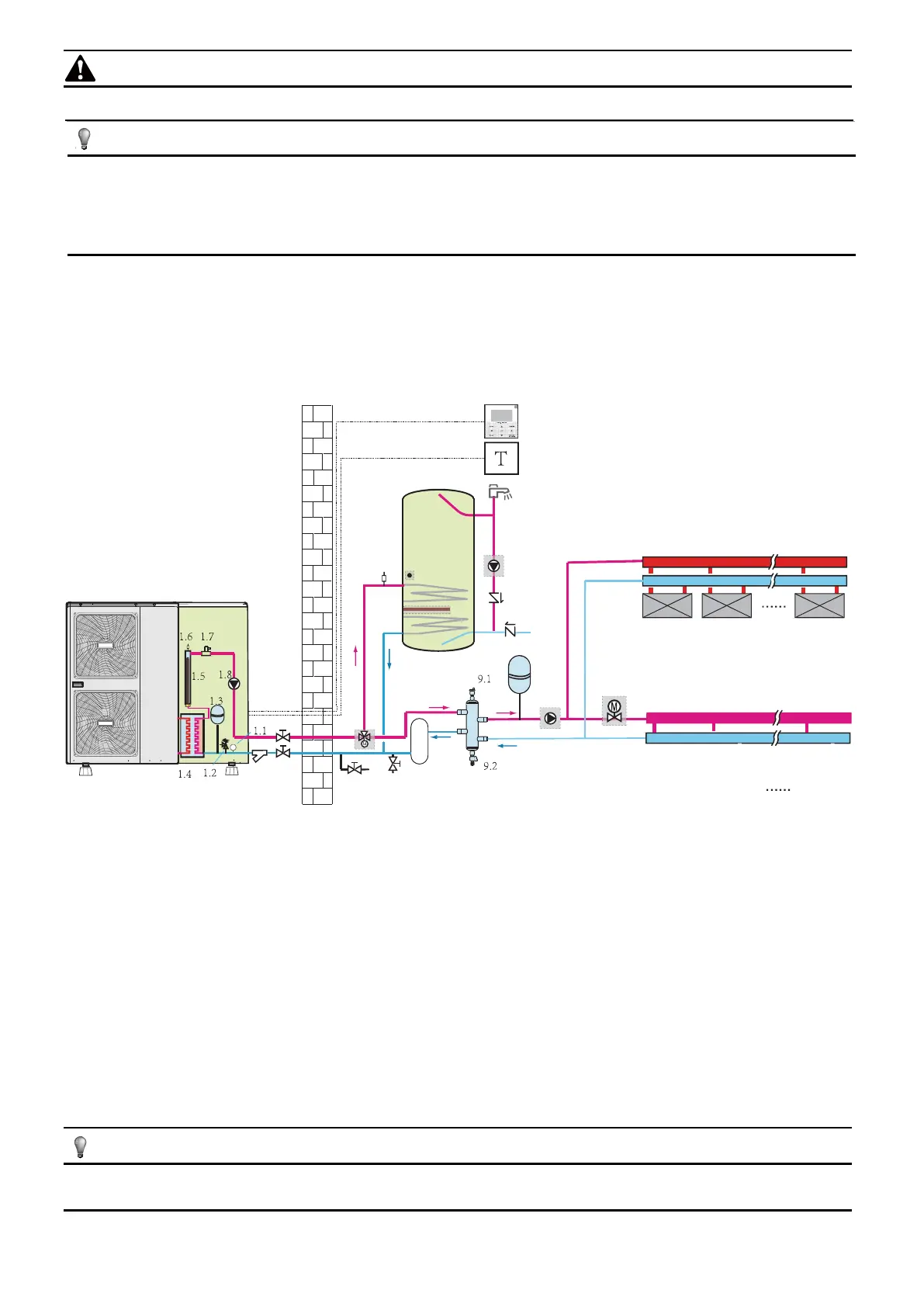
Space cooling and heating application with a room thermostat suitable for heating/cooling changeover when connected to the unit. Heating is
provided through floor heating loops and fan coil units. Cooling is provided through the fan coil units only. Domestic hot water is provided
through the domestic hot water tank which is connected to the unit.
1 outdoor unit
1.1 manometer
1.2 pressure relief valve
1.3 expansion vessel
1.4 plate heat exchanger
1.5 backup heater
1.6 air purge valve
1.7 flow switch
1.8 P_i: circulation pump inside the unit
2 y-shape filter
3 stop valve (field supply)
4 user interface
5 room thermostat (field supply)
6 drain valve (field supply)
7 fill valve (field supply)
8 buffer tank (field supply)
9 balance tank (field supply)
9.1 air purge valve
9.2 drain valve
10 expansion vessel (field supply)
11 P_o: outside circulate pump (field supply)
12 collector (field supply)
13 domestic hot water tank (field supply)
13.1 booster heater
13.2 heat exchanger coil
13.3 air purge valve
14 T5:temperature sensor
15 hot water tap (field supply)
16 P_d: DHW pipe pump (field supply)
17 non-return valve (field supply)
19 SV1: 3-way valve (field supply)
20 SV2: 2-way valve (field supply)
FHL 1...n floor heating loop
FCU 1...n fan coil units
FHL1 FHL2 FHLn
FCUnFCU2FCU1
11
10
12
1
32
6
7
8
9
16
14
13.1
13
17
17
15
13.2
12
20
4
19
5
13.3

Table of Contents

Related product manuals