EasyManua.ls Logo

Midea MOCA30U-18CN1-QC0 - Page 180

Midea MOCA30U-18CN1-QC0
264 pages
Print Icon
To Next Page IconTo Next Page
To Next Page IconTo Next Page
To Previous Page IconTo Previous Page
To Previous Page IconTo Previous Page
Loading...
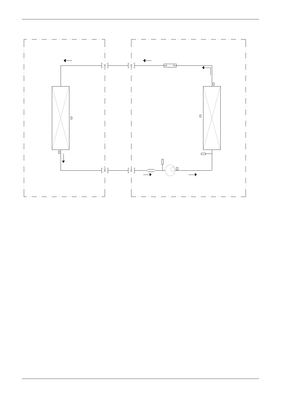
Piping Diagrams
176 Outdoor Units
MODU-48CN1-R, MODU-60CN1-R
INDOOR OUTDOOR
LIQUID SIDE
GAS SIDE
HEAT
EXCHANGE
(EVAPORATOR)
HEAT
EXCHANGE
(CONDENSER)
COMPRESSOR
T2 Evaporator
temp. sensor
T1 Room temp.
sensor
Throttle orifice
T3 Condenser
temp. sensor
T5 Discharge
temp. sensor
High pressure
switch
Low pressure
switch
ACCUMULATOR
T4 Ambient
temp. sensor

Table of Contents

Related product manuals