EasyManua.ls Logo

Midea MOU-18HN1-Q

Midea MOU-18HN1-Q
132 pages
To Next Page IconTo Next Page
To Next Page IconTo Next Page
To Previous Page IconTo Previous Page
To Previous Page IconTo Previous Page
Loading...
Insulation Work
Installation 91
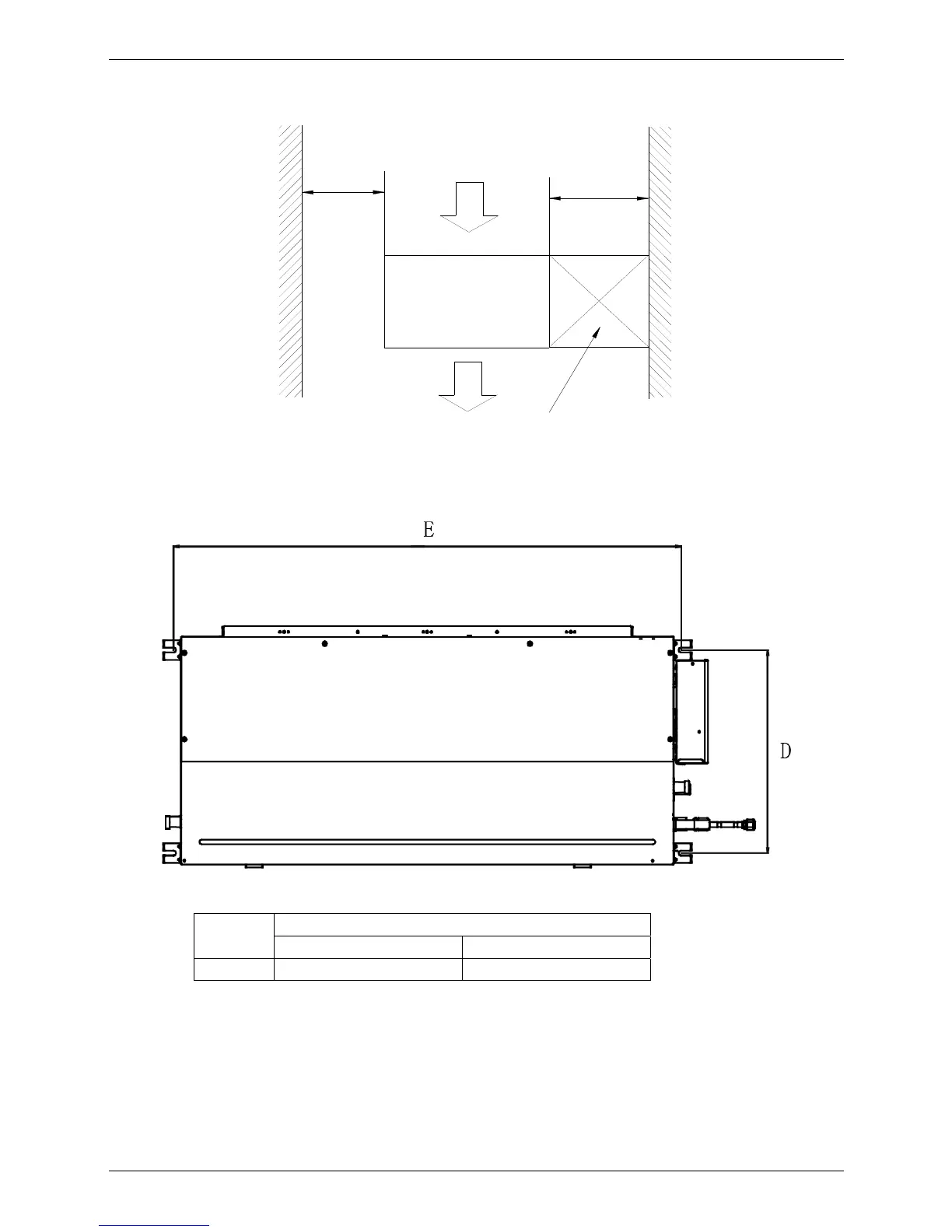
3.4 HESP duct indoor unit installation
3.4.1 Service space for indoor unit
500mm or more
600mm or more
Indoor unit
600mmx600mm
Maintenance and repair space
3.4.2 Bolt pitch
Capacity
(KBtu)
Size of mounted lug
D E
24 397 1146

Table of Contents

Related product manuals