EasyManua.ls Logo

Midea MRCT-200CWN1-R(C) - Page 39

Midea MRCT-200CWN1-R(C)
132 pages
Print Icon
To Next Page IconTo Next Page
To Next Page IconTo Next Page
To Previous Page IconTo Previous Page
To Previous Page IconTo Previous Page
Loading...
Rooftop ClimaCreator series DM16-01.01.27en
Service manual 39
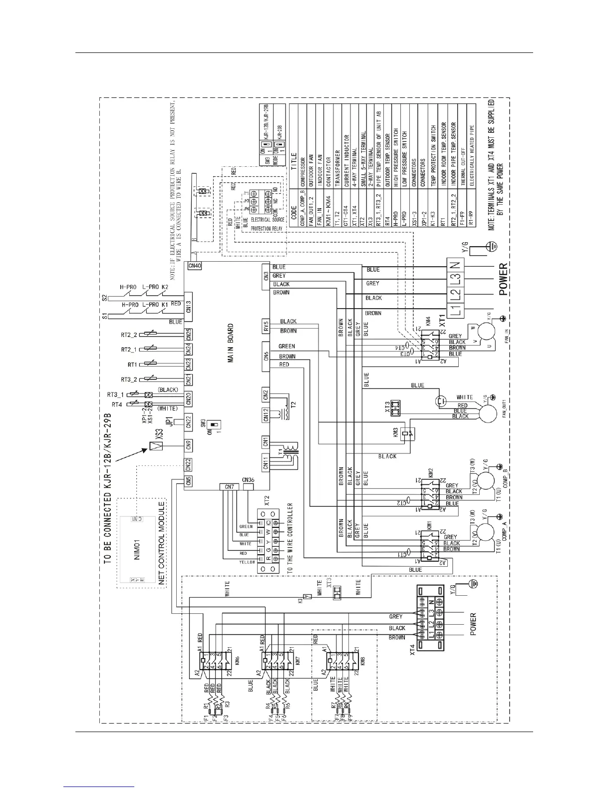
MRCT-085CWN1-R(C):

Related product manuals