EasyManua.ls Logo

Midea MUE-36HRFN1-M(C) - Installation Details; Location Selection; Indoor Unit Installation

Midea MUE-36HRFN1-M(C)
247 pages
To Next Page IconTo Next Page
To Next Page IconTo Next Page
To Previous Page IconTo Previous Page
To Previous Page IconTo Previous Page
Loading...
156
14 .Installation Details
14.1Location selection
14.1.1 Indoor unit location selection
The place shall easily support the indoor
unit’s weight.
The place can ensure the indoor unit
installation and inspection.
The place can ensure the indoor unit
horizontally installed.
The place shall allow easy water drainage.
The place shall easily connect with the
outdoor unit.
The place where air circulation in the room
should be good.
There should not be any heat source or
steam near the unit.
There should not be any oil gas near the unit
There should not be any corrosive gas near
the unit
There should not be any salty air neat the
unit
There should not be strong electromagnetic
wave near the unit
There should not be inflammable materials
or gas near the unit
There should not be strong voltage vibration.
14.1.2 Outdoor unit location selection
The place shall easily support the outdoor
unit’s weight.
Locate the outdoor unit as close to indoor
unit as possible
The piping length and height drop cannot
exceed the allowable value.
The place where the noise, vibration and
outlet air do not disturb the neighbors.
There is enough room for installation and
maintenance.
The air outlet and the air inlet are not
impeded, and not face the strong wind.
It is easy to install the connecting pipes and
cables.
There is no danger of fire due to leakage of
inflammable gas.
It should be a dry and well ventilation place
The support should be flat and horizontal
Do not install the outdoor unit in a dirty or
severely polluted place, so as to avoid
blockage of the heat exchanger in the
outdoor unit.
If is built over the unit to prevent direct
sunlight, rain exposure, direct strong wend,
snow and other scraps accumulation, make
sure that heat radiation from the condenser
is not restricted.
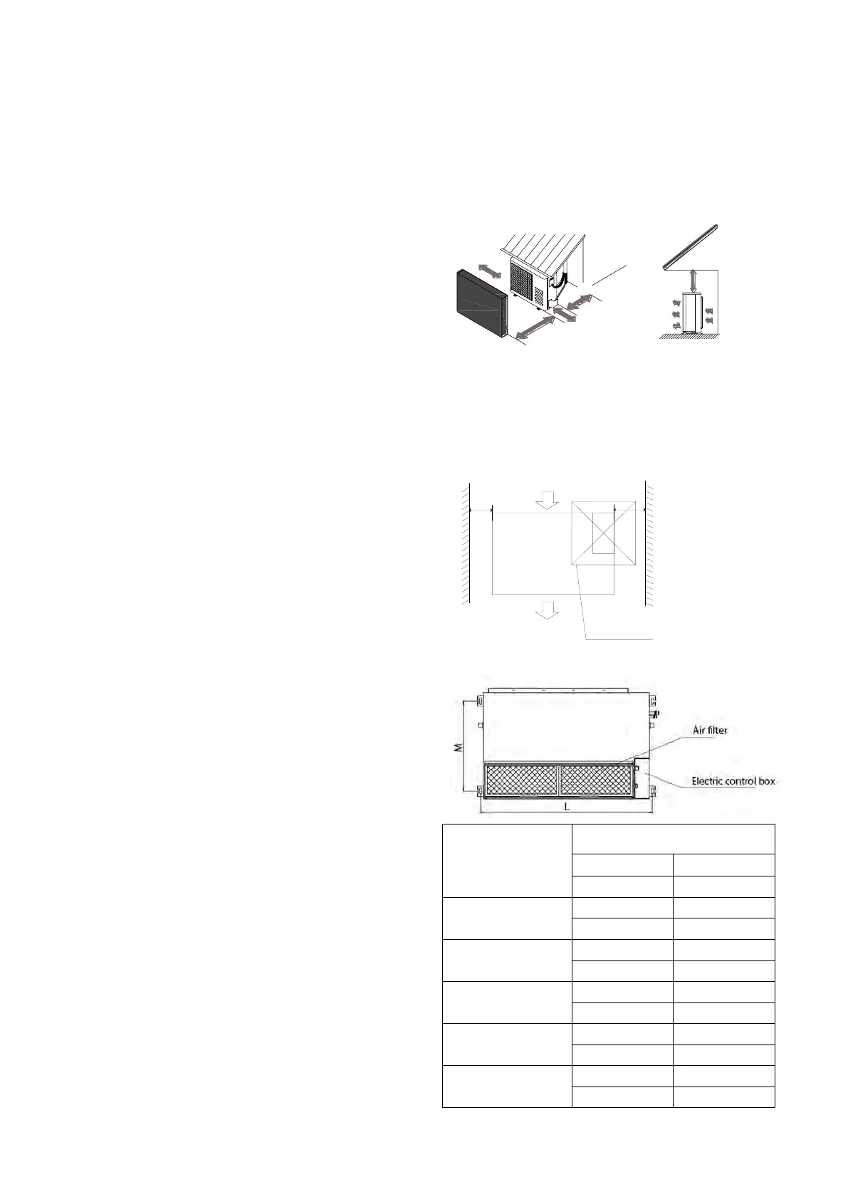
More than 30cm/11.81in
More than 60cm/23.62in
More than 200cm/78.74in
More than 30cm/11.81in
More than
60cm/23.62in
(Service space)
Fence or
obstacles
14.2 Indoor unit installation
14.2.1 A6 Duct indoor unit installation
14.2.1.1 Service space for indoor unit
A6 Duct
200mm(7.87in) or more
300mm(11.81in) or more
600mmx600mm/23.62inx23.62in
Check orifice
14.2.1.2 Bolt pitch
Model
Size of outline dimension
mounted plug
L
M
48.82
19.69
MTIU-09HWFN1-M/
MTIU-12HWFN1-M
741
360
29.2
14.2
MTIU-18HWFN1-M
920
508
36.22
20
MTIU-24HWFN1-M
1140
598
44.88
23.54
MTI-36HWFN1-M
1400
598
55.12
23.54
MTI-48HWFN1-M
1240
697
48.82
27.44

Table of Contents

Related product manuals