EasyManua.ls Logo

Midea MV6-i615WV2GN1-E - 20;22;24 HP Piping Diagram

Midea MV6-i615WV2GN1-E
130 pages
Print Icon
To Next Page IconTo Next Page
To Next Page IconTo Next Page
To Previous Page IconTo Previous Page
To Previous Page IconTo Previous Page
Loading...
V6-i VRF 50/60Hz
18
Midea V6-i Series Service Manual
20/22/24HP
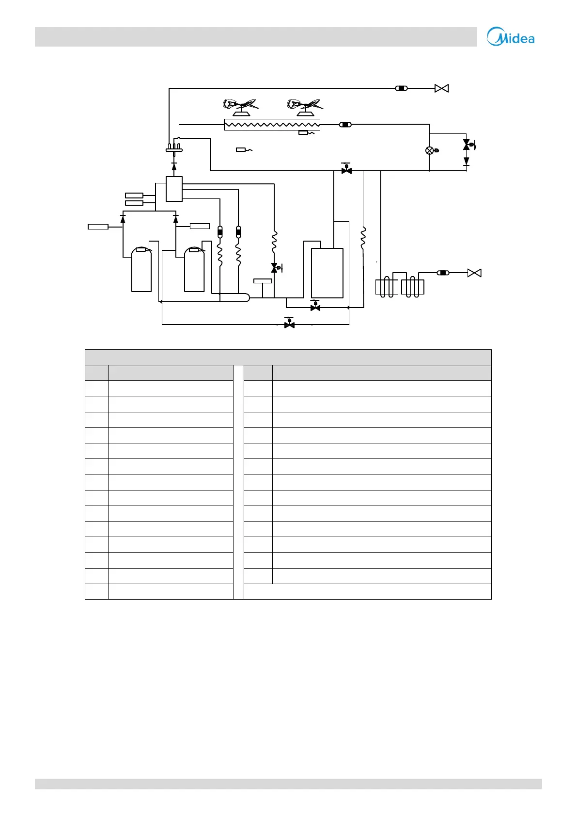
Figure 2-2.3: 20/22/24HP piping diagram
Legend
No.
Parts name
No.
Parts name
1
Compressor
15
Accumulator
2
Discharge temperature switch
T3
Heat exchanger temperature sensor
3
High pressure switch
T4
Outdoor ambient temperature sensor
4
High pressure sensor
T6A
Plate heat exchanger inlet temperature sensor
5
Oil separator
T6B
Plate heat exchanger outlet temperature sensor
6
Four-way valve
T7C1
Compressor A discharge temperature sensor
7
Heat exchanger
T7C2
Compressor B discharge temperature sensor
8
Electronic expansion valve (EXV)
SV4
Oil return valve
9
Low pressure switch
SV5
Fast defrosting (in heating) and unloading (in cooling) valve
10
Fan motor
SV6
Refrigerant bypass EXV valve
11
Fan
SV8A
Compressor A vapor injection valve
12
Stop valve (liquid side)
SV8B
Compressor B vapor injection valve
13
Stop valve (gas side)
SV9
Compressor B pressure balance valve
14
Plate heat exchanger
7
1
1
15
12
9
3
4
5
6
11
11
10 10
8
13
EXVA
E
S
C
SV9
SV4
SV5
SV6
SV2
T3
T4
2
T7C1
T7C2
2

Table of Contents

Related product manuals