EasyManua.ls Logo

Midea V6R Series - 3 Center of Gravity

Midea V6R Series
131 pages
Print Icon
To Next Page IconTo Next Page
To Next Page IconTo Next Page
To Previous Page IconTo Previous Page
To Previous Page IconTo Previous Page
Loading...
V6R VRF 50/60Hz
38
Midea
V6R Series Engineering Data Book
MS04-12
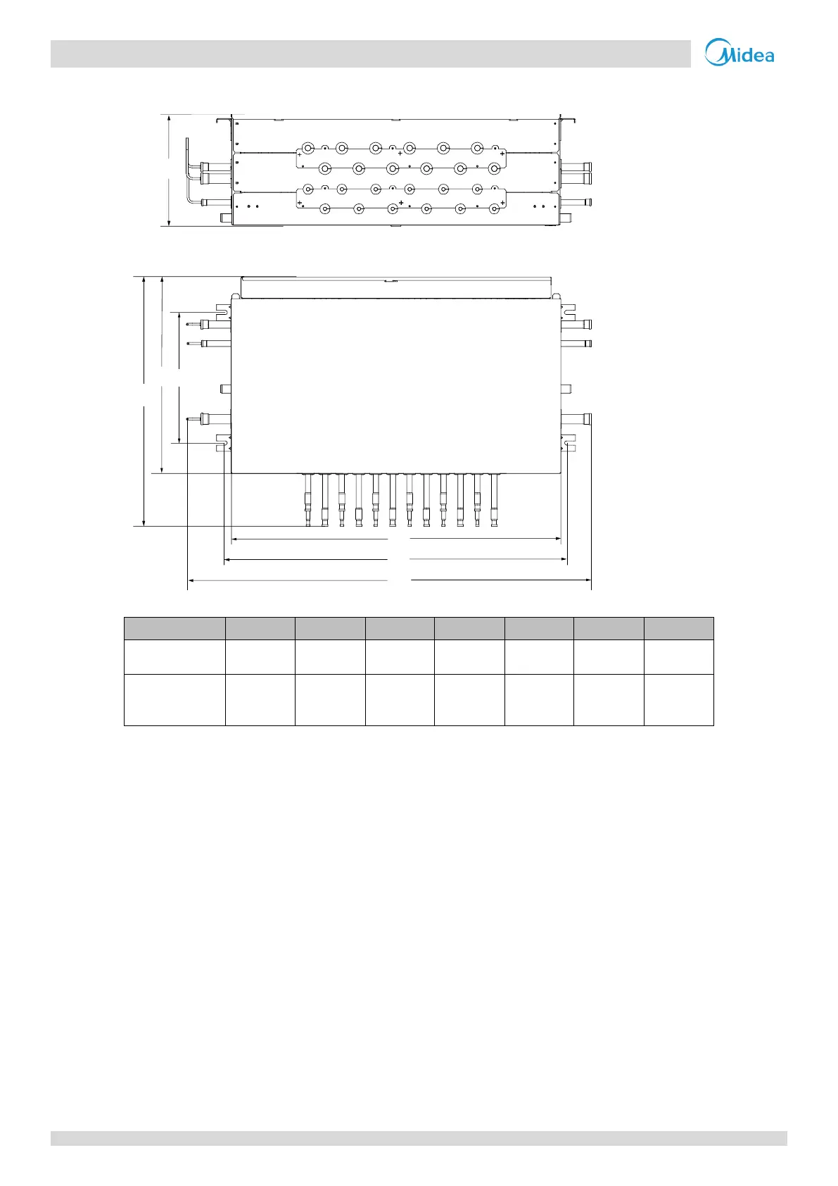
Figure 2-2.8: MS04-12 dimensions (unit: mm)
Table 2-1.1: MS04-12 sdimensions (unit :mm)
Model
A
B
C
D
E
F
G
MS04
MS06
889
702
700
700
574
383
250
MS08
MS10
MS12
1195
1008
700
700
574
383
250
D
B
G
F
A
C
E

Other manuals for Midea V6R Series

Related product manuals