EasyManua.ls Logo

Miele DA 6698 D - Electrical Connection; Electrical Safety and Wiring

Miele DA 6698 D
68 pages
Print Icon
To Next Page IconTo Next Page
To Next Page IconTo Next Page
To Previous Page IconTo Previous Page
To Previous Page IconTo Previous Page
Loading...
Electrical connection
59
All electrical work should be
undertaken by a suitably qualified
and competent person in strict
accordance with current national and
local safety regulations (BS 7671 in
the UK).
Installation, repairs and other work
by unqualified persons could be
dangerous, for which the
manufacturer cannot be held liable.
Ensure power is not supplied to the
appliance until after installation or
repair work has been carried out.
Do not connect the appliance to the
mains electricity supply by an
extension lead. These do not
guarantee the required safety of the
appliance.
The connection data is given on the
data plate. This is visible when the
grease filters have been removed.
Ensure that this data matches the
household mains supply.
Connection of this appliance should be
made via a suitable isolator or a double
pole fused spur connection unit which
complies with national and local safety
regulations and the On/Off switch
should be easily accessible after the
appliance has been built in. When
switched off there must be an all-pole
contact gap of 3 mm in the switch
(including switch, fuses and relays
according to EN 60335).
If the switch is not accessible after
installation (depending on country), an
additional means of disconnection must
be provided for all poles.
For extra safety it is advisable to protect
the appliance with a suitable residual
current device (RCD). Contact a
qualified electrician for advice.
Important
This appliance is supplied for
connection to an a.c. 230 V single
phase 50 Hz supply. The wires in the
mains lead are coloured in accordance
with the following code:
Green/yellow .................................earth
Blue ............................................. neutral
Brown ................................................live
WARNING:
THIS APPLIANCE MUST BE
EARTHED
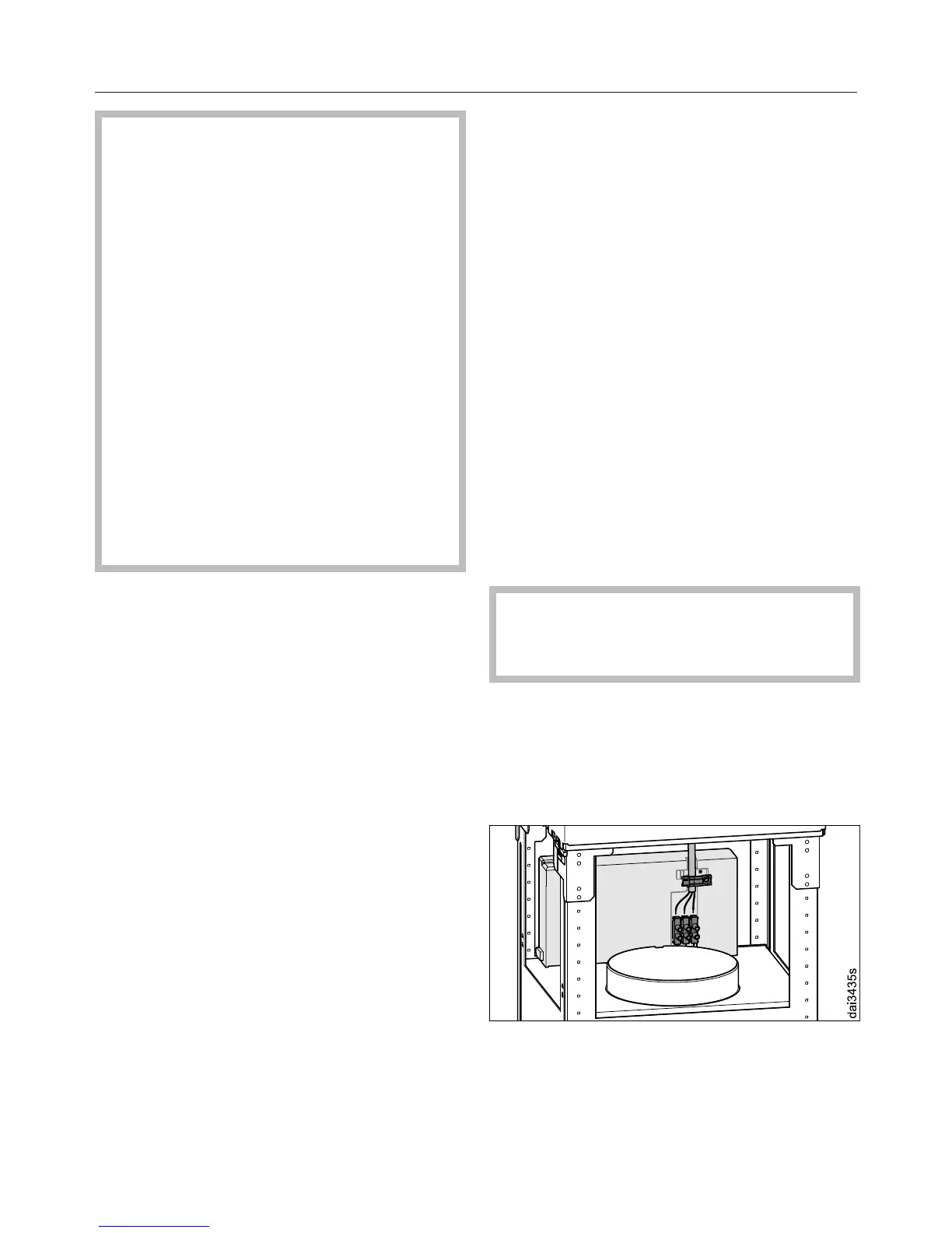
If a flexible connection cable is being
used to connect the appliance to the
electricity supply, the cross-sectional
area of the the individual leads must be
between 0.75 mm² and 1.5 mm².
The strain relief must be used to ensure
problem-free connection.

Table of Contents

Related product manuals