EasyManua.ls Logo

Miele DAS 4640 - Appliance Dimensions

Miele DAS 4640
56 pages
Print Icon
To Next Page IconTo Next Page
To Next Page IconTo Next Page
To Previous Page IconTo Previous Page
To Previous Page IconTo Previous Page
Loading...
Installation
*INSTALLATION*
42
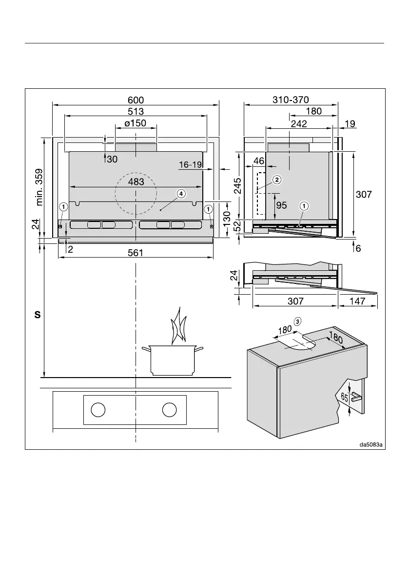
Appliance dimensions
Dia. 1: DA4640 in a 600mm wide cabinet.
The drawing is not to scale

Table of Contents

Related product manuals