EasyManua.ls Logo

Miele DGC7840 - Room for the Control Panel to Open and Close

Miele DGC7840
188 pages
Print Icon
To Next Page IconTo Next Page
To Next Page IconTo Next Page
To Previous Page IconTo Previous Page
To Previous Page IconTo Previous Page
Loading...
Installation
*
I
N
S
T
A
L
L
A
T
I
O
N
*
180
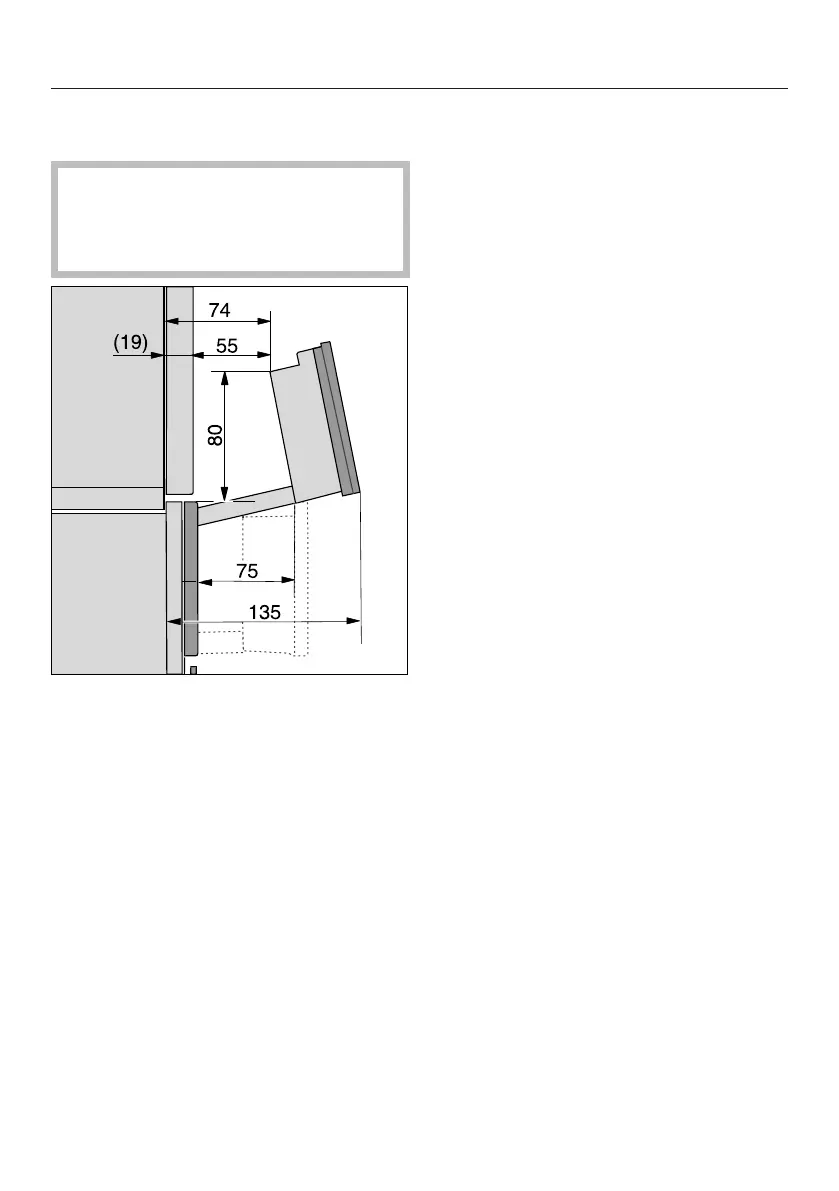
Room for the control panel to open
and close
The area in front of the control panel
must not be blocked by anything
(such as a door handle) that would
hinder it from opening and closing.

Table of Contents

Related product manuals