EasyManua.ls Logo

Miele KM 6639 - Installation

Miele KM 6639
84 pages
Print Icon
To Next Page IconTo Next Page
To Next Page IconTo Next Page
To Previous Page IconTo Previous Page
To Previous Page IconTo Previous Page
Loading...
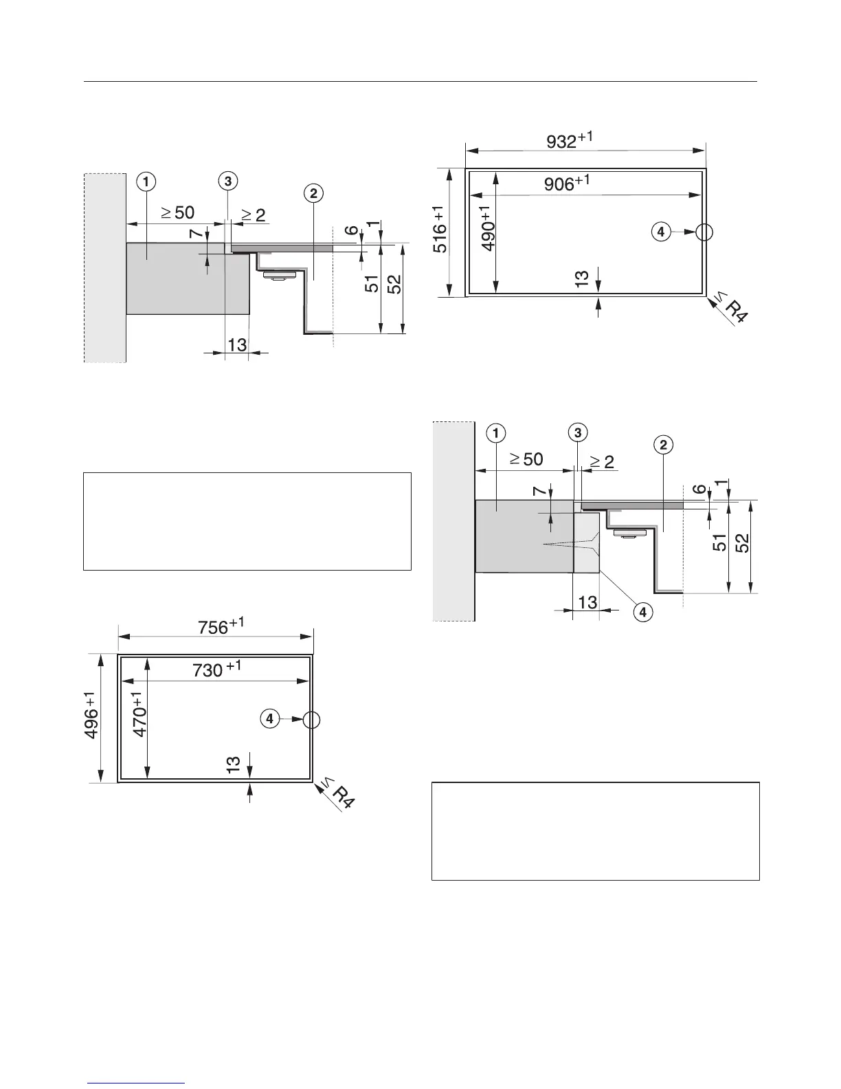
Flush-fitted hobs
70
Installation
Natural stone worktops
a
Worktop
b
Hob
c
Gap
As the ceramic glass and the worktop
cut-out have a certain dimensional
tolerance, the size of the gap can
vary (min. 2mm).
KM 6639 / KM 6839
d
Stepped cut-out
KM 6679 / KM 6879
d
Stepped cut-out
Solid wood, tiled and glass worktops
a
Worktop
b
Hob
c
Gap
d
Wooden frame (13mm) (to be
provided on site)
As the ceramic glass and the worktop
cut-out have a certain dimensional
tolerance, the size of the gap can
vary (min.2mm).

Other manuals for Miele KM 6639

Related product manuals