EasyManua.ls Logo

Miele PDR 914 - Page 66

Miele PDR 914
80 pages
Print Icon
To Next Page IconTo Next Page
To Next Page IconTo Next Page
To Previous Page IconTo Previous Page
To Previous Page IconTo Previous Page
Loading...
Installation
*INSTALLATION*
66
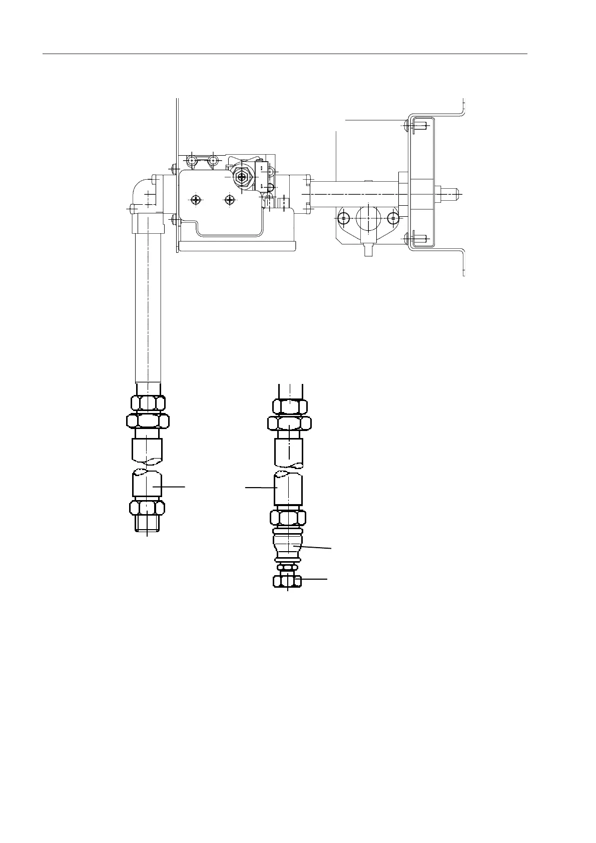
Main connection
Liquid propaneNatural gas
Hose
Reduction sleeve*
Threaded union*
* Supplied with the kit for converting natural gas to propane (LP).

Table of Contents

Related product manuals