EasyManua.ls Logo

Miele PDR 914 - Page 68

Miele PDR 914
80 pages
Print Icon
To Next Page IconTo Next Page
To Next Page IconTo Next Page
To Previous Page IconTo Previous Page
To Previous Page IconTo Previous Page
Loading...
Installation
*INSTALLATION*
68
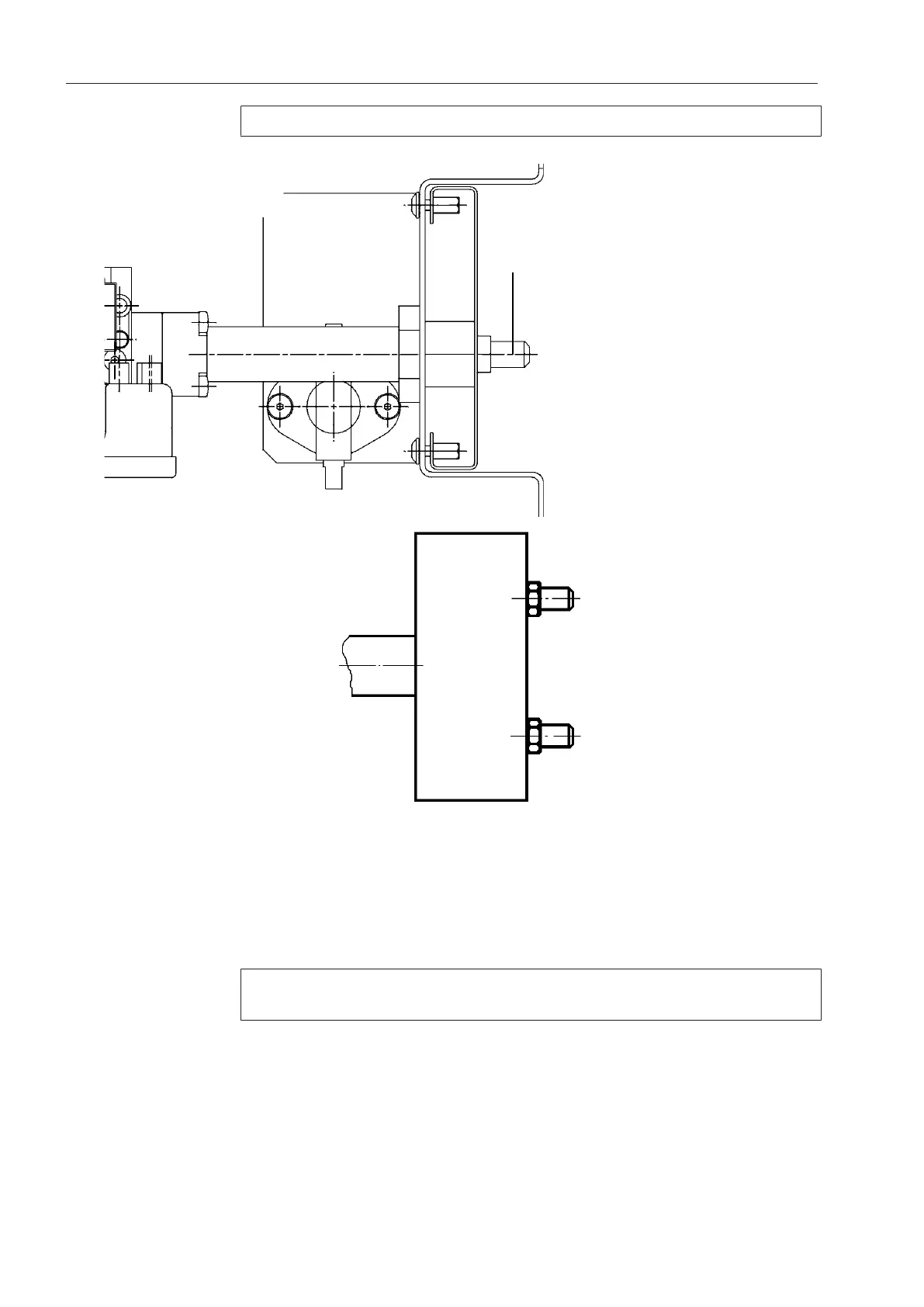
Burner
PDRx14/x18/x22 = 1jet; PDRx28/x44 = 2jets
Burner conversion
Replace the jet and the sealing ring (included with the conversion
kit).
- Natural gas = large hole
- Liquid propane = small hole
Additional steps necessary to convert to liquid gas are outlined in the
“Conversion kit for natural gas to liquid gas conversion.

Table of Contents

Related product manuals