EasyManua.ls Logo

Miele PT 7136 Plus - Direct Wall Vent Connection

Miele PT 7136 Plus
60 pages
Print Icon
To Next Page IconTo Next Page
To Next Page IconTo Next Page
To Previous Page IconTo Previous Page
To Previous Page IconTo Previous Page
Loading...
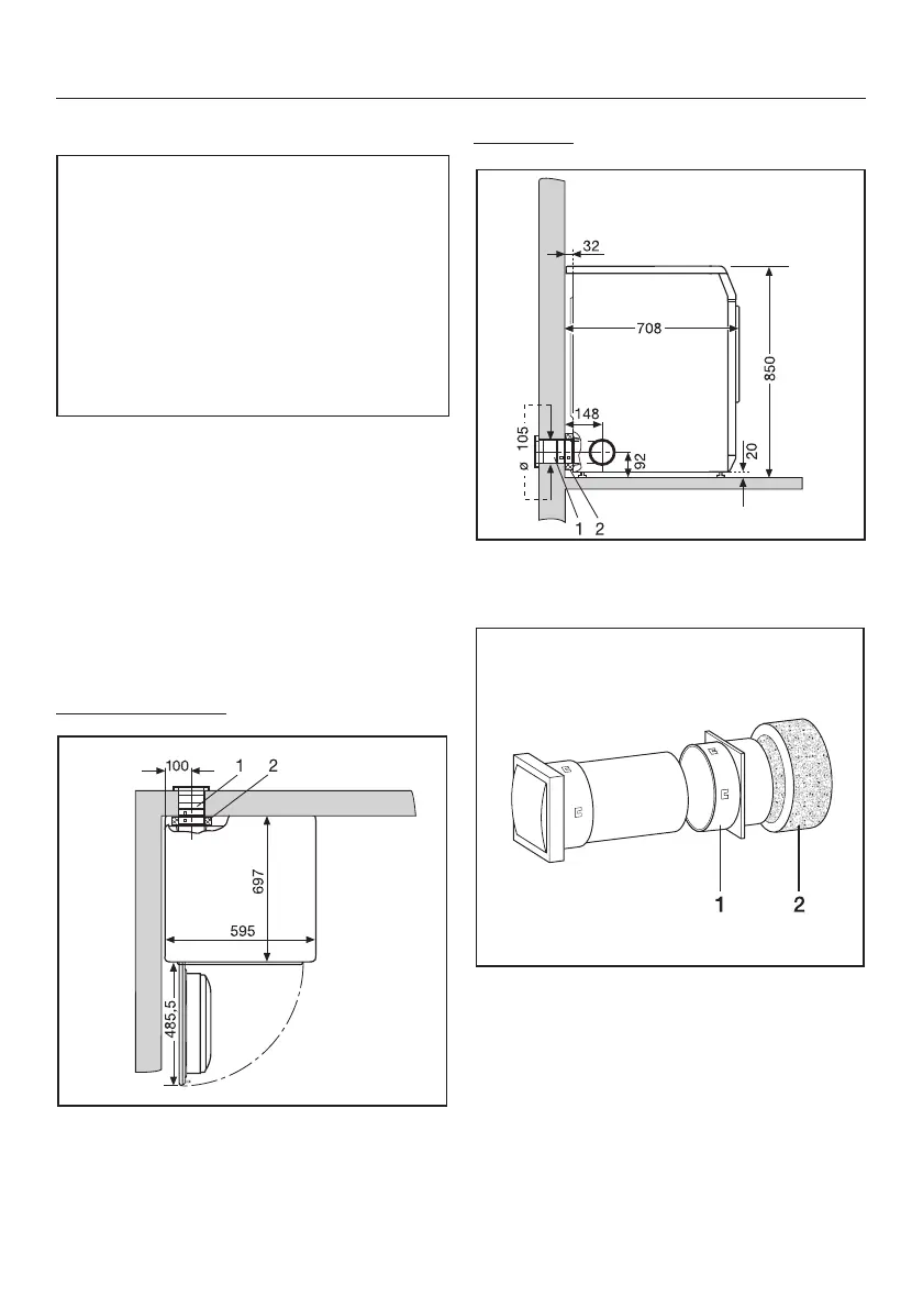
c Connecting directly to a wall vent
The best method of venting the dryer
is to connect it directly to the outside
wall of a room. Because the vented
air is blown directly outside and has
only a short distance to go, this
system is very efficient in terms of
time and energy consumption.
However, it involves boring through
an outside wall.
A wall pipe* and a flexible foam gasket*
must be used
(* optional extras).
A Before drilling into the wall:
. . . please read the installation
instructions supplied with the Miele
wall pipe,
. . . and study the following
diagrams.
View from above:
1. Wall pipe
2. Flexible foam gasket
Side view:
1. Wall pipe
2. Flexible foam gasket
B Fit the foam gasket (2) onto the
connecting piece (1) on the wall
pipe.
C Push the dryer up against the wall.
Installation - extraction ducting
48

Table of Contents

Other manuals for Miele PT 7136 Plus

Related product manuals