EasyManua.ls Logo

Miele TDB120WP - Additional Installation Requirements

Miele TDB120WP
80 pages
Print Icon
To Next Page IconTo Next Page
To Next Page IconTo Next Page
To Previous Page IconTo Previous Page
To Previous Page IconTo Previous Page
Loading...
Installation
58
Additional installation
requirements
All installations must be carried
out in accordance with local
regulations.
Slot-in
This tumble dryer is suitable for pushing
under a countertop.
It is very important to avoid a
build-up of heat. The warm air which
is expelled from the dryer must be
able to dissipate. Warm air which
cannot dissipate could cause a fault.
The appliance lid must not be
removed.
The electrical socket must be located
in an accessible position near the
tumble dryer.
Drying durations may increase
slightly.
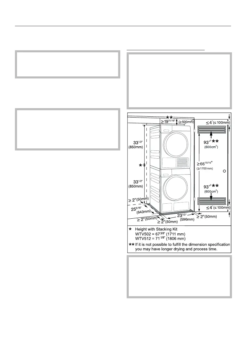
Installing the dryer in a closet
Minimum installation distance
You must insert sufficiently large
ventilation openings into the closet
door. You can also open the closet
door slightly while the dryer is
operating.
Otherwise, the dryer can overheat,
which can cause a fault.
Ensure that the dryer door can
be opened at any time.
Ensure that the laundry can be
removed at any time without
hindrance.

Table of Contents

Related product manuals