EasyManua.ls Logo

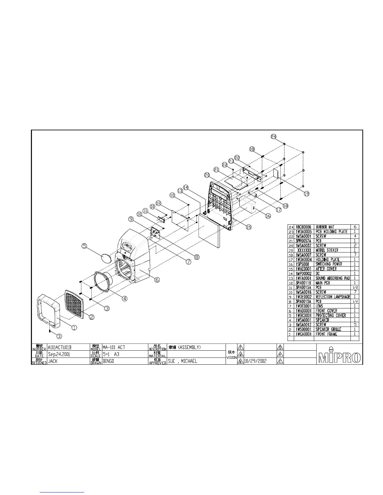
Mipro MA-101 ACT - Assembly Overview; Exploded View and Component List

Mipro MA-101 ACT
29 pages
Print Icon
To Next Page IconTo Next Page
To Next Page IconTo Next Page
To Previous Page IconTo Previous Page
To Previous Page IconTo Previous Page
Loading...
ASSEMBLY

Related product manuals