EasyManua.ls Logo

Mistral MSS20 - Installation Procedures; Connecting Pipe Work

Mistral MSS20
11 pages
Print Icon
To Next Page IconTo Next Page
To Next Page IconTo Next Page
To Previous Page IconTo Previous Page
To Previous Page IconTo Previous Page
Loading...
16 17
Installation
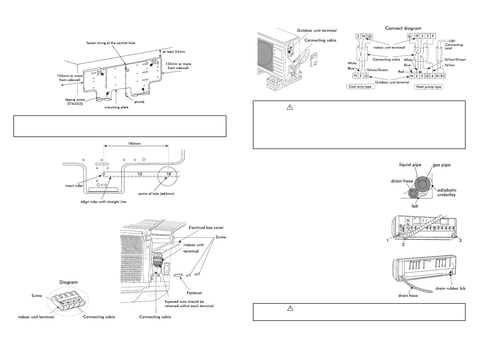
1. Secure the mounting plate
The mounting plate should be attached to the structural part of wall (post etc.)
NOTE: Holes indicated by solid arrows must be secured to avoid mounting plate shaking.
When the expansion bolts are used, two holes (11x20 or 11x26) 450mm apart
should be adopted.
2. Drill on the wall
Conrm the position of holes, and drill holes of ø65mm on the wall.
¢ INDOOR UNIT
1. Open the front panel
2. Remove the screw from electrical box
cover, pull the box cover away from the
unit and set aside.
3. Remove the screw from fastener, pull the
fastener away from the unit and set aside.
4. Connect the cable
5. Replace the fastener and electrical box cover
¢ OUTDOOR UNIT
WARNING:
The connecting cables must be clipped together.
Special cable must be used to connect indoor unit and outdoor unit. Ensure that the
terminals are not inuenced by external forces. Poor connections may cause a re.
The electric box cover must be mounted and secured in position, otherwise re or electrical
shock may occur because of dust or moisture.
If necessary, consult your supply authority for system impedance information.
¢ CONNECTING PIPE WORK
1. NOTE:
The drain must be arranged beneath the copper pipe.
The drain hose must not be hunched or bent.
When the drain hose runs through the house, it should
be wrapped with special heat insulated materials.
The copper pipe and the drain hose must be wrapped
by felt strip. Heat insulated pad should be used in the
place that the pipe contacts the wall.
2. ROUTE OF PIPE:
If pipe came out of the right side of the indoor unit,
cut part "1" on the unit.
If pipe came out of the lower-right side of the indoor
unit, cut part "2" on the unit.
If pipe came out of the left side of the indoor unit, cut
part "3" on the unit.
3. REFIT OF DRAIN HOSE
If pipe comes out of the left side of the indoor unit, the
drain hose must be retted otherwise water leakage
may occur.
Ret methods: Interchange the position of drain hose and
drain rubber bib, the right diagram is normal position.
Clearance is not possible after retting as it leads to
water leakage.
WARNING: When re-installing the piping and drain hose they should be removed via the
position, otherwise there might be a risk of electric shock.

Related product manuals