EasyManua.ls Logo

Mitsubishi Electric MS-GD80VB-E1 - Physical Dimensions and Outlines; Electrical Wiring Diagram

Mitsubishi Electric MS-GD80VB-E1
26 pages
Print Icon
To Next Page IconTo Next Page
To Next Page IconTo Next Page
To Previous Page IconTo Previous Page
To Previous Page IconTo Previous Page
Loading...
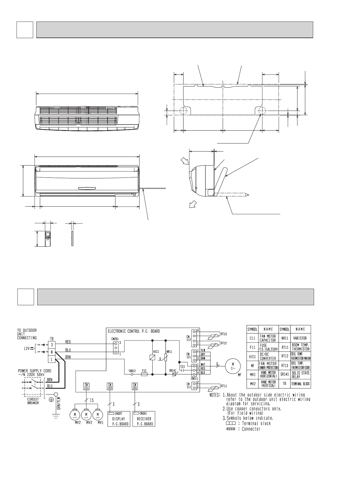
OUTLINES AND DIMENSIONS
4
5
258
162
19
58
47
7.5
315
255.547
2.5
98
173
98 173414.5 414.5
5
253
791
56
1068
1100
325
Air out
Air in
Insulation
ø28
Drain hose
ø16
(Connected part O.D)
Installation plate
Wall hole ø75
Wireless remote controller
Installation plate
Indoor unit
{
Liquid line ø 9.52- 0.5 m
Gas line ø 12-0.43 m
Insulation ø
ø
50 O.D
32 I.D
Power supply cord
Lead to right 2.0 m
Lead to left 1.0 m
MS-GD80VB
Unit: mm
WIRING DIAGRAM
6
MS-GD80VB
OBH511A

Related product manuals