EasyManua.ls Logo

Mitsubishi L3A

Mitsubishi L3A
254 pages
To Next Page IconTo Next Page
To Next Page IconTo Next Page
To Previous Page IconTo Previous Page
To Previous Page IconTo Previous Page
Loading...
No.9
INSPECTION RECORD SHEET
Remark
A
pproved
by
Checked
by
Measured
by
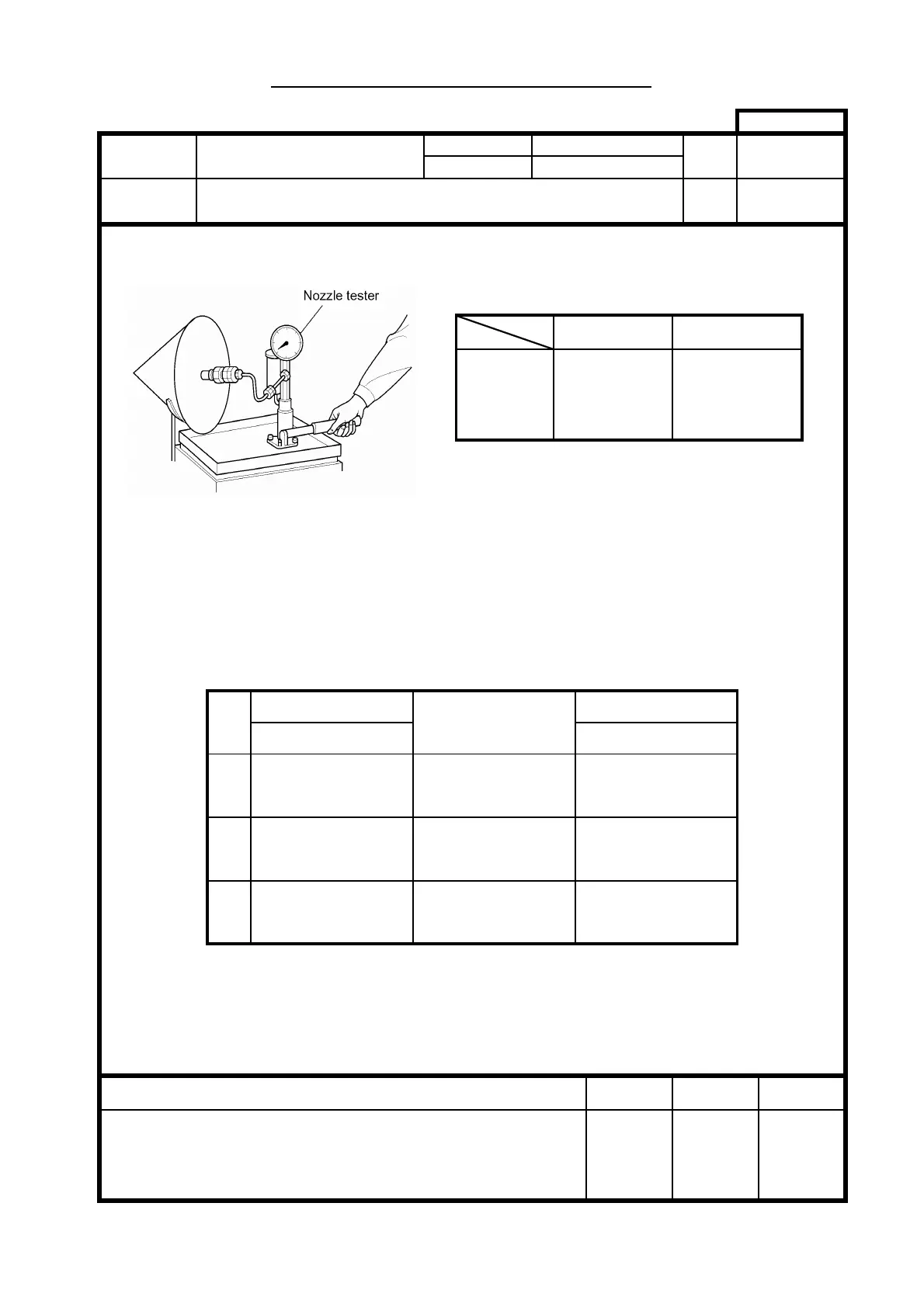
Measuring Positions Standard
Measured Values
1
Before Adjustment
No. Service Hours (h)
2
3
Valve Opening Pressure
After Adjustment
Engine Model
Serial No.
Valve Opening Pressure
L
Inspection
Point
Unit
Measurement of Valve Opening Pressure of Fuel Injection
Nozzle
DateCompany
MPa
{kgf/cm
2
}
[psi]
Standard
13.73 to 14.73
{140 to 150}
[1992 to 2134]
Nominal Value
Valve Opening
Pressure
13.73
{140}
[1992]
Supplement-10

Table of Contents

Related product manuals