EasyManua.ls Logo

Mitsubishi QY10 - 5. Interrupt Module; 5.1 QI60 Interrupt Module

Mitsubishi QY10
158 pages
To Next Page IconTo Next Page
To Next Page IconTo Next Page
To Previous Page IconTo Previous Page
To Previous Page IconTo Previous Page
Loading...
5 - 1 5 - 1
MELSEC-Q
5 INTERRUPT MODULE
5. INTERRUPT MODULE
5.1 QI60 Interrupt Module
For usage of this module, refer to the User’s Manual (Function Explanation, Program
Fundamentals) for the CPU module used.
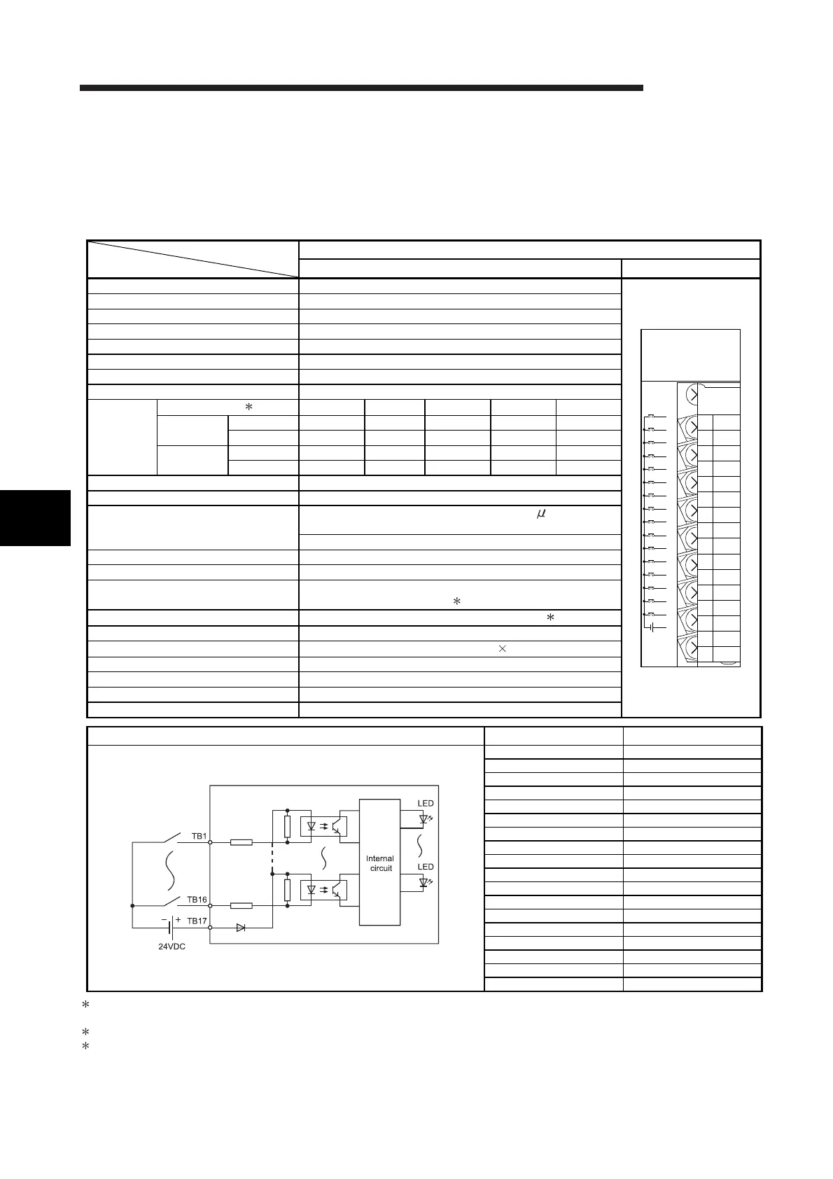
Type
Specifications
Interrupt module
QI60 Appearance
Number of input points 16 points
Isolation method Photocoupler
Rated input voltage 24VDC (+20/-15%, ripple ratio within 5%)
Rated input current Approx. 6mA
Input derating No
ON voltage/ON current 19V or higher/4.0mA or higher
OFF voltage/OFF current 11V or lower/1.7mA or lower
Input impedance Approx. 3.9k
Response
time
Set value 1
0.1 0.2 0.4 0.6 1
OFF to ON
TYP. 0.05ms 0.15ms 0.30ms 0.55ms 1.05ms
MAX. 0.10ms 0.20ms 0.40ms 0.60ms 1.20ms
ON to OFF
TYP. 0.15ms 0.20ms 0.35ms 0.60ms 1.10ms
MAX. 0.20ms 0.30ms 0.50ms 0.70ms 1.30ms
Dielectric withstand voltage 560VAC rms/3 cycles (altitude 2000m)
Insulation resistance 10M or more by insulation resistance tester
Noise immunity
By noise simulator of 500Vp-p noise voltage, 1 s noise width
and 25 to 60Hz noise frequency
First transient noise IEC61000-4-4: 1kV
Protection degree IP2X
Common terminal arrangement 16 points/common (common terminal: TB17)
Number of occupied I/O points
16 points (I/O assignment is set as a 16-point interrupt module.)
3
Interrupt processing condition
Set by Switch setting in GX Developer. 2
Operation indicator ON indication (LED)
External connections
18-point terminal block (M3 6 screws)
Applicable wire size 0.3 to 0.75mm
2
core (2.8mm OD max.)
Applicable crimping terminal R1.25-3 (Sleeved crimping terminals cannot be used.)
Internal current consumption (5VDC) 60mA (TYP. all points ON)
Weight 0.20kg
External connection Terminal block No. Signal name
TB1 X00
TB2 X01
TB3 X02
TB4 X03
TB5 X04
TB6 X05
TB7 X06
TB8 X07
TB9 X08
TB10 X09
TB11 X0A
TB12 X0B
TB13 X0C
TB14 X0D
TB15 X0E
TB16 X0F
TB17 COM
TB18 Vacant
1: Select the value in PLC parameter. (Default: 0.2ms). Refer to Section 1.3.1 for the setting method.
For the CPU modules (Q series) and GX Developer where the response time can be set, refer to Section 1.2.5.
2: For the setting method, refer to the section 1.3.3.
3: When making settings with an SW5D5C-GPPW or earlier GX Developer, select "16 point intelligent Module."
0
1
2
3
4
5
6
7
8
9
A
B
C
D
E
F
COM
QI60
NC
24VDC
6mA
+-
01234567
8 9 ABCDEF
0
1
2
3
4
5
6
7
8
9
A
B
C
D
E
F
5

Table of Contents

Related product manuals