EasyManua.ls Logo

Mitsubishi SRK10CFV-4; SRK13CFV-4 - 2.4 Piping system

Mitsubishi SRK10CFV-4; SRK13CFV-4
51 pages
Print Icon
To Next Page IconTo Next Page
To Next Page IconTo Next Page
To Previous Page IconTo Previous Page
To Previous Page IconTo Previous Page
Loading...
-
6
-
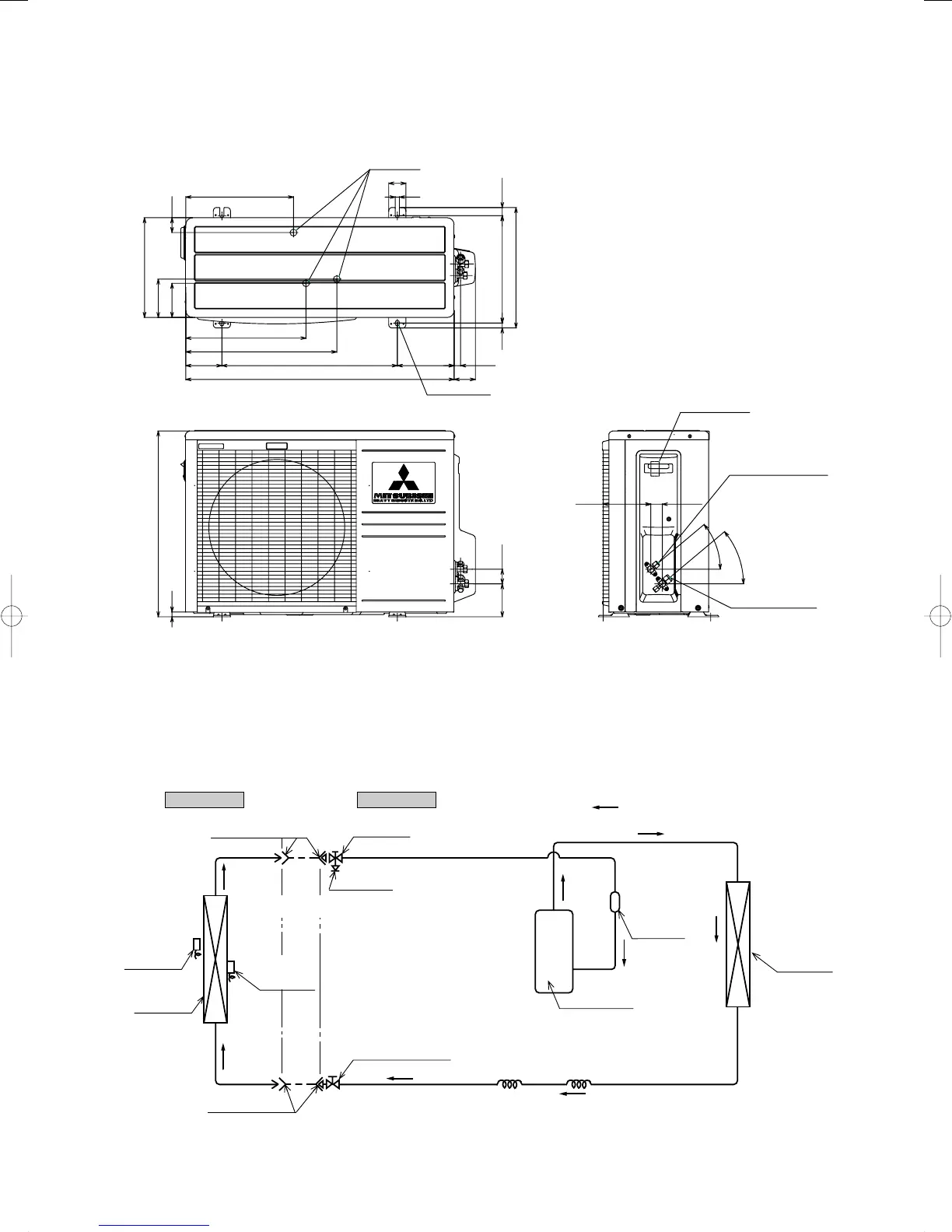
(2) Outdoor unit
Models SRC10CFV-4, 13CFV-S
2.4 Piping system
Models All models
Outdoor unitIndoor unit
Room temp.
sensor
Heat
exchanger
Flare connecting
Heat
exchanger
sensor
Piping
(Liquid)
ø6.35
Check joint
Service valve (Liquid)
Flare connecting
Cooling cycle
Heat
exchanger
Compressor
Capillary tube
Accumulator
Service valve
(Gas)
Capillary tube
( )
Piping
(Gas)
10 : ø9.52
13 : ø12.7
Unit: mm
Terminal block
10: ø9.52 (3/8")
13: ø12.7 (1/2")
ø6.35 (1/4")
Flare connecting
Service valve (Gas)
Service valve (Liquid)
Flare connecting
Drain holes
2-16×12
138.4
40°
61.9
18.9165.1510104.9
439.1
111.4
99.4
349.5
313.1
43.1
290
12
50
350
23.5312.514
33.5
40°
42.595.9
14
540
780

Related product manuals