EasyManua.ls Logo

Modular DW 51 Series - Schemi DI Installazione - Installations Plan - Installation Diagram - Schema Dinstallation - Esquema de Instalacion - Installatieschema - Схемы Монтажа - Installationsscheman

Default Icon
Print Icon
To Next Page IconTo Next Page
To Next Page IconTo Next Page
To Previous Page IconTo Previous Page
To Previous Page IconTo Previous Page
Loading...
85
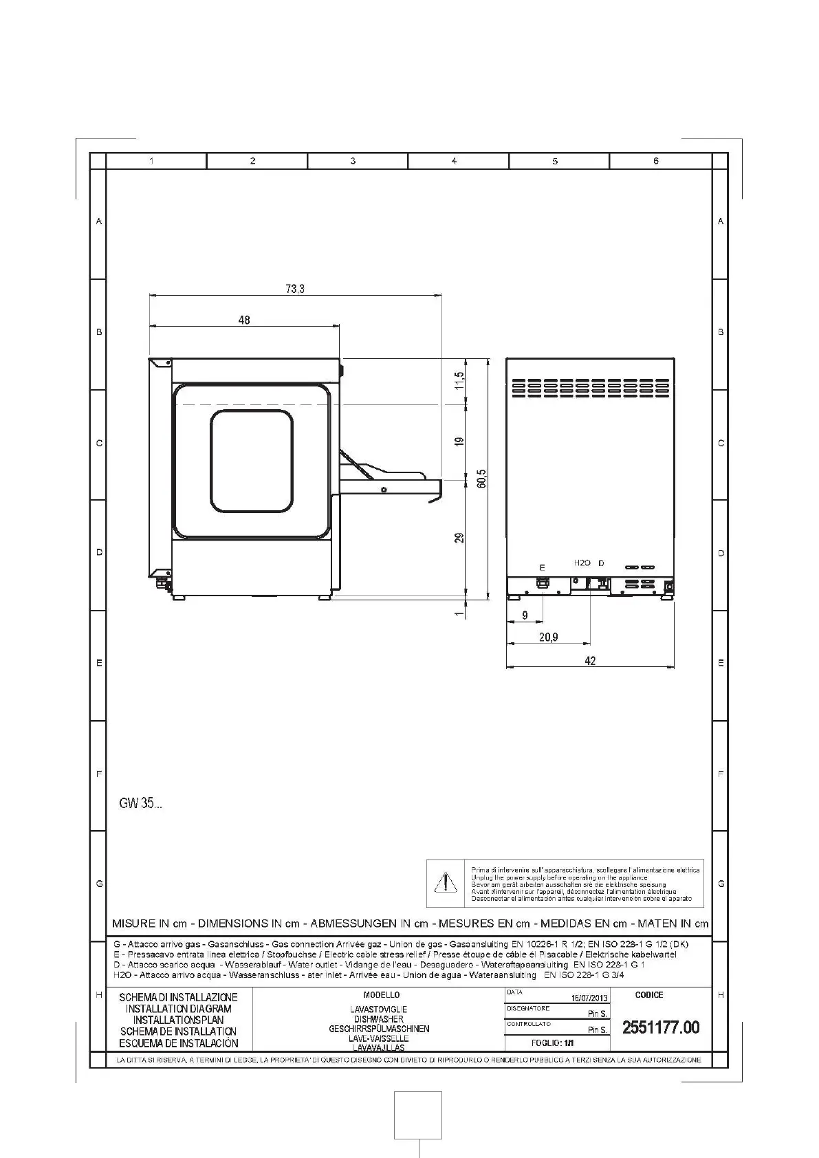
VII. SCHEMI DI INSTALLAZIONE INSTALLATIONS PLAN - INSTALLATION DIAGRAM
SCHEMA D’INSTALLATION – ESQUEMA DE INSTALACION INSTALLATIESCHEMA
- СХЕМЫ МОНТАЖА - INSTALLATIONSSCHEMAN

Table of Contents

Related product manuals