EasyManua.ls Logo

Mohawk IA - Page 42

Default Icon
79 pages
Print Icon
To Next Page IconTo Next Page
To Next Page IconTo Next Page
To Previous Page IconTo Previous Page
To Previous Page IconTo Previous Page
Loading...
MOHAWK MODELS SYSTEM IA & SYSTEM IA-10
34
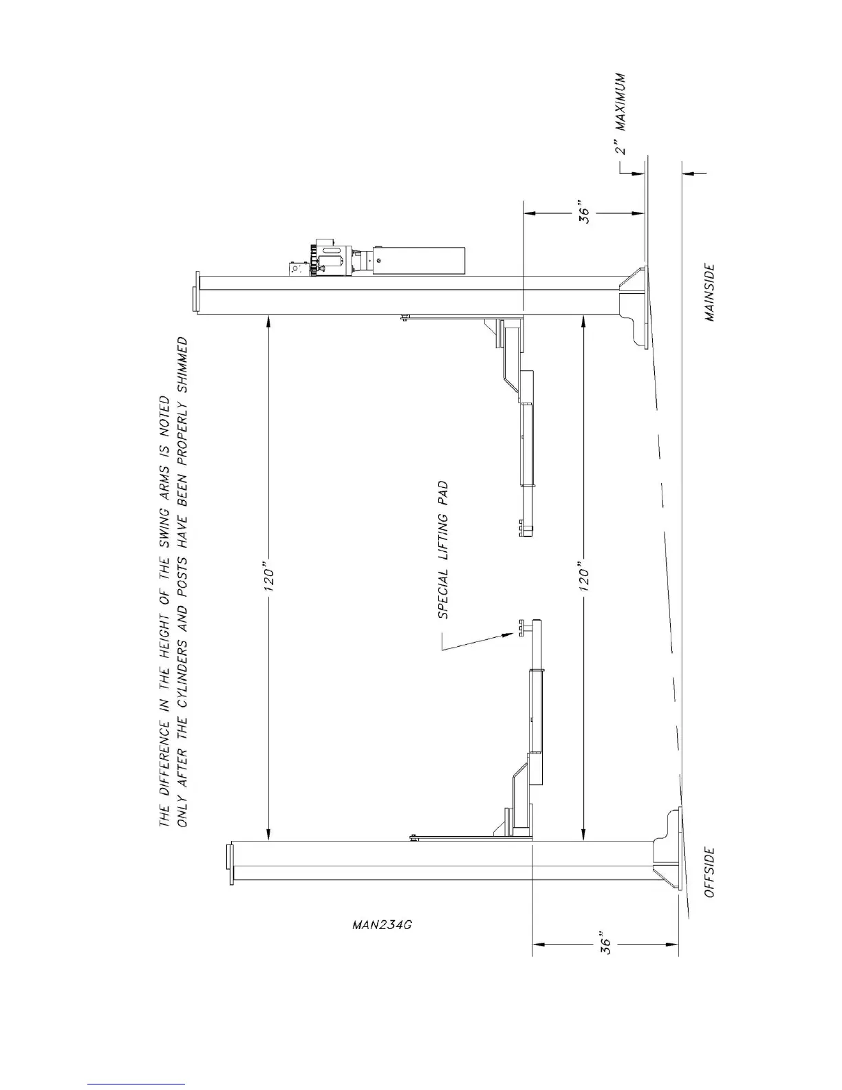
Figure 12

Table of Contents

Related product manuals