EasyManua.ls Logo

Mohawk LMF-12 - Page 29

Mohawk LMF-12
62 pages
Print Icon
To Next Page IconTo Next Page
To Next Page IconTo Next Page
To Previous Page IconTo Previous Page
To Previous Page IconTo Previous Page
Loading...
MOHAWK MODEL LMF
-
12
22
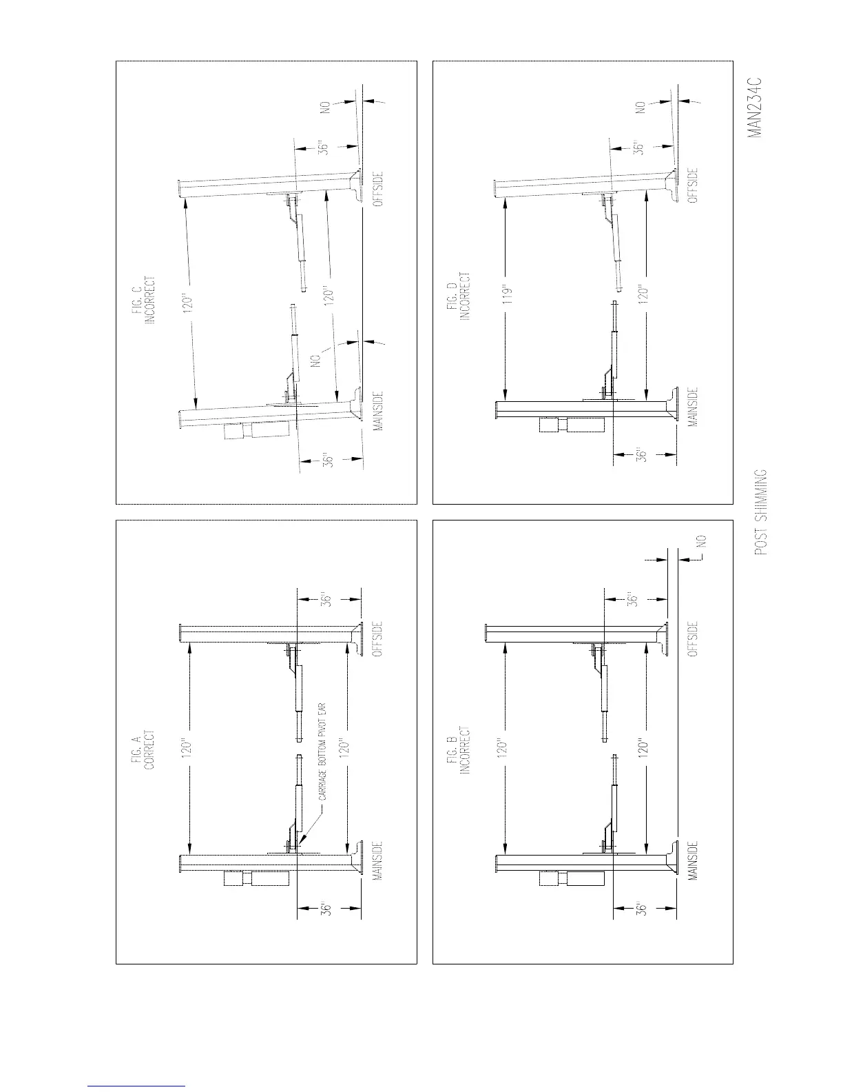
Figure 6