EasyManua.ls Logo

Molift Smart 150 - Assembly and Disassembly Procedures; Lifter Assembly Steps; Post-Assembly Verification

Molift Smart 150
16 pages
Print Icon
To Next Page IconTo Next Page
To Next Page IconTo Next Page
To Previous Page IconTo Previous Page
To Previous Page IconTo Previous Page
Loading...
4
Molift Smart 150 / www.etac.com
Safe Working Load (SWL)
150 kg (330 lbs)
Weight of unit
Ex. battery: 25 kg / incl. battery: 25,8 kg
Battery:
Art: 0541000
14.4 V NiMH 2.6 Ah
Battery charger:
100-240 V AC, 50-60 Hz
0,9 A output
Lifting speed
50,7 mm/second (1.99 inches/second)
with 75kg (165 lbs) load
Protection class
Hand control IP24
Lift motor IP24
Maximum A-weighted sound power level
L
WA
= 49,4 dB
Operating forces button
Buttons on handset: 3.4 N
Material:
Aluminum, plastic, steel
Motor
Lifting motor/actuator: 12 V DC
Turning diameter:
1300 mm (51,2 inches)
Number of lifts with fully charged battery:
40 lifts ( 75 kg / 165 lbs, 50 cm / 20 inches)
Expected Lifetime:
The lifter has an expected lifetime of 30 000
cycles or 10 years.
Measurements folded (LxWxH):
1160 x 475 x 355mm (45.66 x 18.7 x 14”)
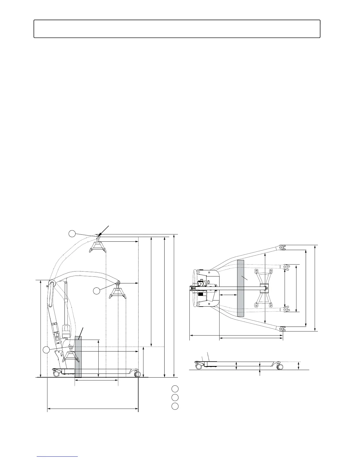
Technical data
1 Highest position 1860mm
2 Maximum reach position 1260mm
3 Lowest position 400mm
A Maximum reach at 600 mm 610mm
B Maximum reach from base 630 mm
C Reach from base with legs spread to 700 mm 240mm
D Base height 105mm
E Base clearance 45mm
F Min. distance from wall to CSP (1) 455mm
G Min. distance from wall to CSP (2) 200mm
H Min. distance from wall to CSP (3) 885mm
K Maximum height of CSP 1880mm
L Minimum height of CSP 410mm
M Hoisting range 1450mm
P Maximum internal width 925mm
Q Internal width at maximum reach 860mm
R Minimum internal width 545mm
Fig 1,12,14 ISO 10535
w=700
h=600
CSP
1665 mm
(65
/in)
1905 mm (75in)
1030 mm (40/in)
925 mm (36
/in)
660 mm (25/)
545mm (21
/in)
820 mm
(32
/in)
1180 mm
(46/in)
1065 mm
(41
/in)
530 mm
(20
/in)
215 mm
(8
/in)
1315 mm (51/in)
1200 mm (47/in)
W 190mm
7 / in
105mm
(4
/in)
1860 mm (73
/in)
1260 mm (49
/in)
400 mm (15
/in)
610 mm
(24
/in)
630 mm
(24/in)
240 mm
(9
/in)
105 mm
(4
/in)
45 mm
(1
/in)
455 mm
(17
/in)
200 mm
(7
/in)
885 mm
(34
/in)
1880 mm
(74
/in)
410 mm
(16
/in)
1450 mm
(57
/in)
860 mm
(33
/in)
545 mm
(21
/)
1
Highest position:
2
Max reach:
3
Lowest position:
1
2
3

Other manuals for Molift Smart 150

Related product manuals