EasyManua.ls Logo

Monogram ZIS48N - Page 12

Monogram ZIS48N
48 pages
Print Icon
To Next Page IconTo Next Page
To Next Page IconTo Next Page
To Previous Page IconTo Previous Page
To Previous Page IconTo Previous Page
Loading...
12
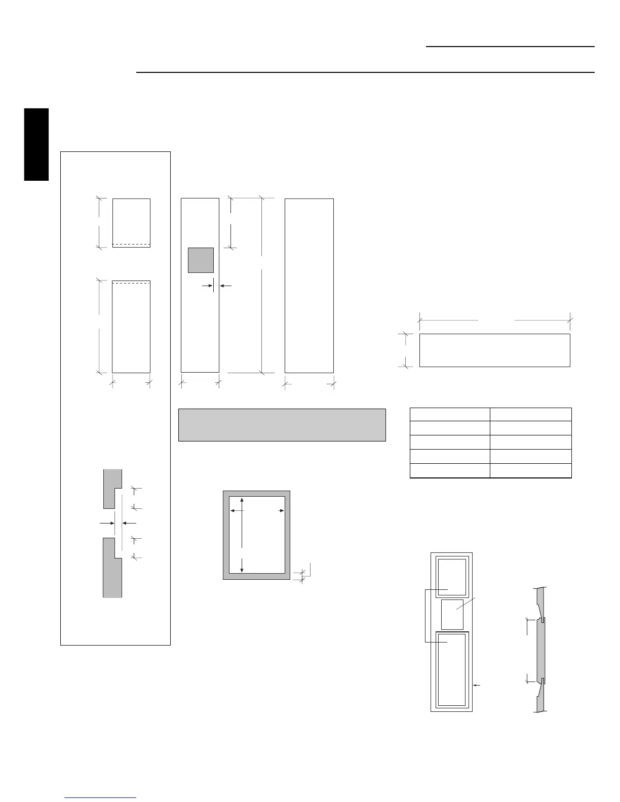
Custom Panel Dimensions
48" Built-In Refrigerator
ZISW48D (white dispenser)
ZISB48D (black dispenser)
The ZKT48 trim kit provides for the installation of 3/4"
custom door and grille panels, using the standard full-
length handle. Cut panels to size and install.
For standard dispenser trim: Cut panels to size, rout the
bottom of the upper freezer panel and the top of the
lower freezer panel to allow placement of support
brackets and install (see detail A).
For custom dispenser trim ZWCD2 kit must be used: Cut
panels to size, refer to detail B for dispenser cutout
routing instructions and install. When a raised panel
design is used, a custom middle rail is required. A
14-1/2" wide middle rail must be used because the
custom collar trim must be located within the raised
portion of the panel. This area must be 3/4" thick. See
detail C for raised panel design requirements.
Custom Door Panel Dimensions
Using Trim Kit ZKT48
3/4" thick panel with standard handle
and/or ZWCD2 custom collar trim
Installation Height Dimension A
83" 8-1/4"
83-1/2" 8-3/4"
84" 9-1/4"
84-1/2" 9-3/4"
Important:
Maintain 1-1/2" min. gap between
top of doors and bottom of grille panel.
Grille Panel height can vary to fill installation
height.
12 1/16"
12 5/16"
7/8"
Wide
Rout
The Cutout is 12 1/16" wide
by 12 5/16" high. 3/4" panels
must be routed on all four
sides of the cutout. Rout
the back side of the panel
1/4" deep. 7/8" wide
(shaded area).
Detail B Custom
Dispenser Cutout
Custom Grille Panel
47 1/2"
A
Over 1/4" Thick (3/4" max) Panel
Detail A
Upper
Freezer
Panel
Lower
Freezer
Panel
Panel
Face
1"
1"
3/32"
16 11/16"
37"
3 5/16"
67 15/16"
19 1/16"
27 1/16"
17 11/16"
Fresh Food
Panel
Freezer Panel
Standard
Dispenser
Freezer Panel
Custom
Dispenser
19-1/16"
CUSTOM PANEL
DIMENSIONS
Hole is
Cut
After Door
Fabrication
14 1/2"
Wide
Middle
Rail
Detail C
Raised Panel Design
Handle
Side
A
A
Important: Maximum weight for fresh food panels is
50 pounds and 30 pounds for freezer door panels.

Related product manuals