EasyManua.ls Logo

Morgana AutoCreaser Pro 50 - Page 28

Morgana AutoCreaser Pro 50
40 pages
Print Icon
To Next Page IconTo Next Page
To Next Page IconTo Next Page
To Previous Page IconTo Previous Page
To Previous Page IconTo Previous Page
Loading...
Page 28
CREASING
ON
E
GUARD
SWITCH
STACKER GUARD
SWITCH 75-040
DISTRIBUTION
BLOCK
EARTH LEAD 76-232
SYSTEM SWITCH COIL LEAD 75-364
76-230-02
76-154
76-155
E
BLK
BLK
JAM
DUAL
SENSOR
EDGE
DETECT
3
4
6
7
24
26
39
40
CREASER UNIT
BRN
BL
EARTH
BONDING
POINT
BLADE POSITION
SENSOR 76-156
75-356
DIAGNOSTIC
LEAD
M
BLADE
PSU MAINS LEAD 75-184
BLADE MOTOR
76-241
DRIVE MOTOR
76-240
BLADE SIGNAL LEAD 75-437
DRIVE SIGNAL LEAD
75-436
42
BLADE
DRIVE
SIGNAL
BLADE
SIGNAL
3
4
EARTH LEAD
76-236
59
41
DRIVE
DUAL
STEPPER
DRIVER
PNK
VIO
BRN
GRN/YEL
GRN/YEL
FUSE
FUSE
BRN
BRN
BRN
BRN
BL
55
PSU OUT PUT LEAD 75-429
48
T500mA
T4.0A
BRN
BL
BRN
BL
BRN
BL
GRN/YEL
BL
BRN
GRN/YEL
BL
M
DRIVE
EARTH LEAD
76-256
84
CONTROL SYSTEM ASSEMBLY
72 volts DC Nominal
Between Pink & Violet
Wires (REF.)
SW1 = Posn. 1
SW2 1 = ON
SW2 2 = ON
SW4 = Posn. 1
SW3 1 = ON
SW3 2 = ON
PSU EARTH LINK
75-296
PSU MAINS LINK
75-297
GRN/YEL
53
CONTROLLER PCB
ENGINEERING
JOYSTICK
AIR
BLADE
DRIVE
DOUBLE
GUARD
POWER RELAY 1 RELAY 2
SLIDE
P
O
S.
CREASE
EDGE
CREASE
CRUNCH
HOME
HOME
SLOT
1
12
12
13
11
PSU LINK LEAD
75-284
FUSE
T315mA
8
9
HOME
SWITCH
HOME SWITCH
75-231
BRN
BL
C
BOOKLET
M
AKER INTERFACE
FUSE LEA D
75-259
48V
VA
WRL
VAC
S
LOT
VAC
PSU
48V
PSU
24V
L
N
E
-V
+V
BL
BL
71
BRN
BRN
YEL/GRN
52
70
RD
RD
69
VIO
PNK
48
GRN/YEL
TRUNKING
TRUNKING
40
BL
BRN
L
N
E
-V
+V
VIO
BK
58
58
VIO
BK
VIO
BK
BK
VIO
M
VALVE
MOTOR & SENSOR
M
VACUUM DRUM
MOTOR
78
83
80
82
79
80
83
DISPLAY
VALVE
CONTROLLER
VACUUM DRU M
SENSOR
19
19
VACUUM SENSOR LEAD 76-255
YEL/GRN
YEL/GRN
STEPPER INPUT LEAD 75-423
E
EARTH
BONDING POINT
EARTH LEAD 75-432
46
52
39
2
E
EARTH
BONDING POINT
86
TOUCHSCREEN
86
BLK
RD
YEL
BLK
MOTORISED VALVE
STEPPER
SW4 1 = OFF
SW4 2 = ON
SW43=OFF
SW44=ON
SW5 1 = OFF
SW5 2 = OFF
SW5 3 = OFF
SW5 4 = OFF
173-54-01
SHORTING
LINK
EARTH LEAD 97-149
TO EARTH STUD
SERVICE PANEL
EARTH LEAD 97-150
TO EARTH STUD ON
COMPRESSOR PANEL
MINI ITX
MOTHER BOARD
2 BLACK WIRES
2YELLOWWIRES
VACUUM DRUM
STEPPER
BK
VIO
78
81
79
SW4 1 = ON
SW4 2 = OFF
SW4 3 = OFF
SW4 4 = OFF
SW5 1 = OFF
SW5 2 = OFF
SW5 3 = OFF
SW5 4 = OFF
FERRITE
GRN/YEL
BL
BRN
MAINS IN
L
N
E
FAN ASSY.
75-316-02
GRN/YEL
BRN
BL
BL
GRN/YEL
BRN
EMERGENCY
STOP
COMP.
SWITCH
SYSTEM
SWITCH
SYSTEM SWITCH
INPUT LEAD
75-191
COMP. LEAD 75-124
L
N
L
N
N
31
BRN
BL
BRNBL
BRN
BL
BRN
BL
WHI
WHI
43
COMP. SWITCH
INPUT LEAD
75-534
44
33
BRN
BL
29
BL
BRN
BRN
BL
MAINS
FILTER
54
BL
45
BRN
BRN
GRN/YEL
BRN
BL
GRN/YEL
TRANSFORMER ASSY.
FUSE
T15A
BRN
BRN
YEL
BL
BK
RN
37
110V MAINS SUPPLY LEAD 76-317
55
34
50
33
50
55
55
34
37
33
ORG
ORG
IMPORTANT
33
SET SLIDE SWITCH TO
115V IF SWITCHABLE
ATX PSU
MAINS IN
ON / OFF
RED
ORG
YEL
ANTISTATIC
UNIT
ANTISTATIC
TRANSFORMER
AND LEAD ASSY.
75-512
ANTISTATIC
MAINS LEAD
75-260
CONTROL LEG
ASSEMBLY
WHI
WHI
E
RED
ORG
YEL
PUMP
OVERLOAD
GRN/YEL
GRN/YEL
29
CONNECTIONS
WHI
WHI
P2
P1
SV190 PUMP (50Hz & 60Hz)
BLU
BRN
N
L
GRN/YEL
29
75-554
75-549
75-550
SLOT
2
GRN/YEL
E
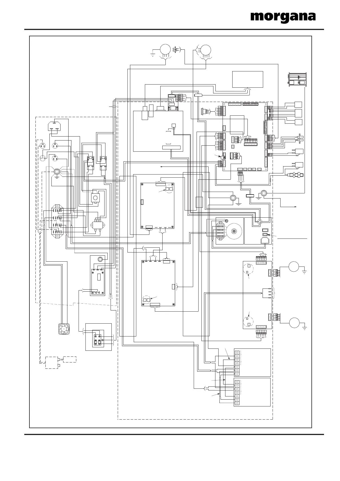
AutoCreaser Pro 50
Wiring Diagram
53 EARTH LEAD (75-321)
54 MAINS FILTER TO DISTR. BLOCK (75-320)
55 TRANSFORMER MAINS SUPPLY (76-325)
58 STEPPER INPUT LEAD (75-423)
59 BLADE MOTOR EARTH LEAD (76-236)
69 PSU LINK LEAD (75-284)
70 PSU EARTH LINK (75-296)
71 PSU MAINS LINK (75-297)
78 SUPPLY LINK LEAD (75-514)
79 VACUUM SIGNAL LEAD (75-420)
80 VALVE SIGNAL LEAD (75-421)
81 VACUUM DRUM MOTOR (75-425)
82 VALVE MOTOR (75-426)
83 VALVE SENSOR LEAD (75-427)
84 EARTH LEAD (76-256)
86 INTERFACE LEAD (76-271)
2 TO 24, SEE COLOUR CODE SHEET DRAWING
ON PAGE 27
26 STACKER GUARD SWITCH (75-040)
29 COMPRESSOR LEAD (75-124)
31 SYSTEM SWITCH INPUT LEAD (75-191)
33 EMERGENCY STOP INPUT LEAD (75-228)
34 FUSE LEAD (76-322)
37 110V MAINS SUPPLY LEAD (76-317)
39 EARTH. CHASSIS TO CREASING UNIT (76-232)
40 PSU MAINS LEAD (75-184)
41 DRIVE MOTOR LEAD (76-240)
42 BLADE MOTOR LEAD (76-241)
43 SYSTEM SWITCH OUTPUT LEAD (75-193)
44 COMPRESSOR SWITCH INPUT LEAD (75-534)
45 EMERGENCY STOP OUTPUT LEAD (75-195)
46 CHASSIS EARTH LEAD (75-435)
48 PSU OUTPUT LEAD (75-429)
50 MAINS INPUT FUSE LEAD (76-327)
52 EARTH LEAD (75-432)

Other manuals for Morgana AutoCreaser Pro 50

Related product manuals