EasyManua.ls Logo

Motorola CM200

Motorola CM200
352 pages
To Next Page IconTo Next Page
To Next Page IconTo Next Page
To Previous Page IconTo Previous Page
To Previous Page IconTo Previous Page
Loading...
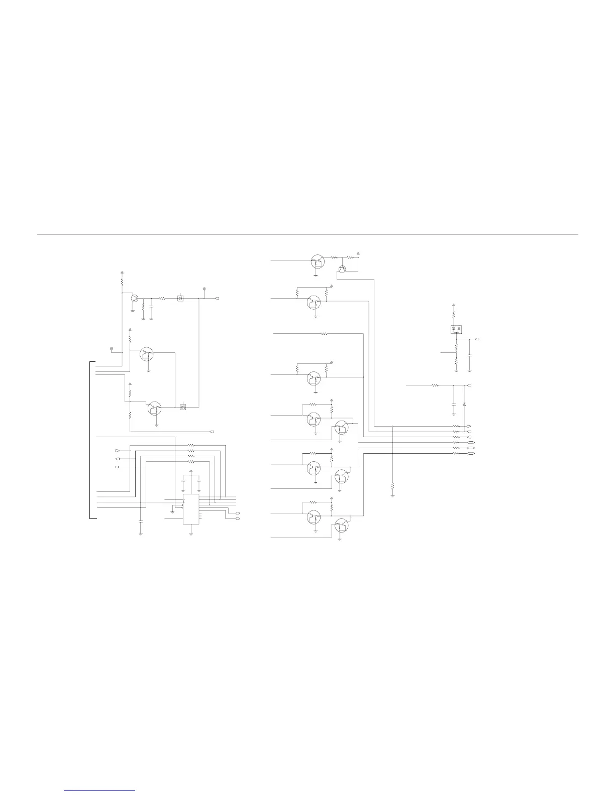
UHF 25-40 W Band 2 PCB 8486577Z03 / Schematics 4-45
1
TP408
TEST_POINT
D3_3V
10.K
R445
Q414
R459
47.K
1.u
C490
10.K
R431
VR400
6.80
D3_3V
10.K
R444
Q415
TEST_POINT
TP405
1
BOOT_EN_IN_CH
R421
220.
Q403
R401
2.7K
R460
FILT_SW_B+
1.5K
Q401
33.K
R436
D3_3V
3.3K
R457
Q412
SCI_CH
ACCESS_PTT
PROG_OUT-ALARM_4
39.K
R430
R429
100.K
D401
220.
R461
120.p
R458
D3_3V
C418
3.3K
MIC_PTT_CH
MIC_PTT
MIC_SENSE
HOOK_CH
120.p
C417
D402
R407
0.
0.
R406
0.
R405
0.
R404
R403
0.
R402
0.
PROG_I-ACC_C_3
PROG_O-ACC_C_4
PROG_I-ACC_C_6
PROG_IO-ACC_C_8
PROG_IO-ACC_C_12
PROG_IO-ACC_C_14
Q416
R435
33.K
D3_3V
R456
3.3K
R434
D3_3V
Q411
33.K
R455
3.3K
Q410
D3_3V
PROG_IO-P8_I
PROG_IO-P8_O
PROG_IN-P6_I
Q404
33.K
R433
3.3K
R454
Q409
D3_3V
R432
33.K
R453
3.3K
PROG_IO-P14_I
PROG_IO-P12_I
PROG_IO-P12_O
Q405
Q408
PROG_IO-P14_O
PROG_OUT-ALARM_4
PROG_IO-P8_O
PROG_IO-P12_O
PROG_IO-P14_O
VS_AUDIO_SEL
VS_GAIN_SEL
10.K
R470
D3_3V
R422
10.K
3.30
VR402
Q413
VS_INT
VS_RAC
VS_CS
R469
DNP
DNP
R468
DNP
DNP
R466
R467
22.n
C421
SPI_CLK
SPI_MOSI
120.p
C422
100n
C423
D3_3V
RESET
10
SERIN
14
SEROUT
9
VCC
16
Q0
15
Q1
1
Q2
2
Q3
3
Q4
4
Q5
5
Q6
6
Q7
7
U405
MC74HC595A
CLK_L
12
CLK_S
11
EN_OE
13
GND
8
R440
10.K
VSTBY
DNP
DNP
DNP
DNP
DNP
10K
47K
DNP
10K
47K
10K
47K
47K
47K
47K
47K
47K
47K
47K
47K
47K
47K
10K
47K
10K
47K
10K
47K
EXT_ALARM_OUT
EXT_MIC_PTT
PROG_IN
PROG_I/O
PROG_I/O
PROG_I/O
TO SHEET 2
UHF2 (438-470 MHz) 25-40 W Microprocessor and Controller Circuits (Sht 2 of 2)

Table of Contents

Other manuals for Motorola CM200

Related product manuals