EasyManua.ls Logo

mr. steam CU-2500 - Page 6

Default Icon
36 pages
Print Icon
To Next Page IconTo Next Page
To Next Page IconTo Next Page
To Previous Page IconTo Previous Page
To Previous Page IconTo Previous Page
Loading...
mr
.
steam
®
C U S E R I E S Installation, Operating & Maintenance Manual
6
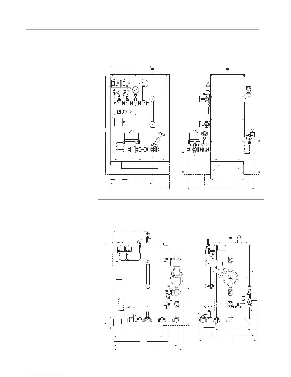
DIMENSIONS
NOTES FOR FIGURE 2-4:
Typical Arrangement of Boiler with
McDonnell Miller. For illustration
purposes only. Refer to all notes
below
1. All dimensions are approximate.
2. MM150 Liquid Level Control on
CU-2000 and larger models
only. CU-360 to CU-1400 have
electronic liquid level
controls.
15.7
15.7
22.0
6.6
9.4
13.5
25.0
16.4
12.6
1.9
37.2
Front Right Side
6.6
Front Right Side
16.6
30.1
26.4
23.9
33.0
20.5
17.1
5.6
27.5
16.3
2.8
39.3
19.0
0.8
Figure 2: CU360-1400
Figure 3: CU2000

Related product manuals