EasyManua.ls Logo

mr. steam CU-2500 - Installation Clearance Specifications; CU360-1400 Clearance Requirements; CU2000 & CU3000 Clearance Requirements

Default Icon
36 pages
Print Icon
To Next Page IconTo Next Page
To Next Page IconTo Next Page
To Previous Page IconTo Previous Page
To Previous Page IconTo Previous Page
Loading...
mr
.
steam
®
C U S E R I E S Installation, Operating & Maintenance Manual
8
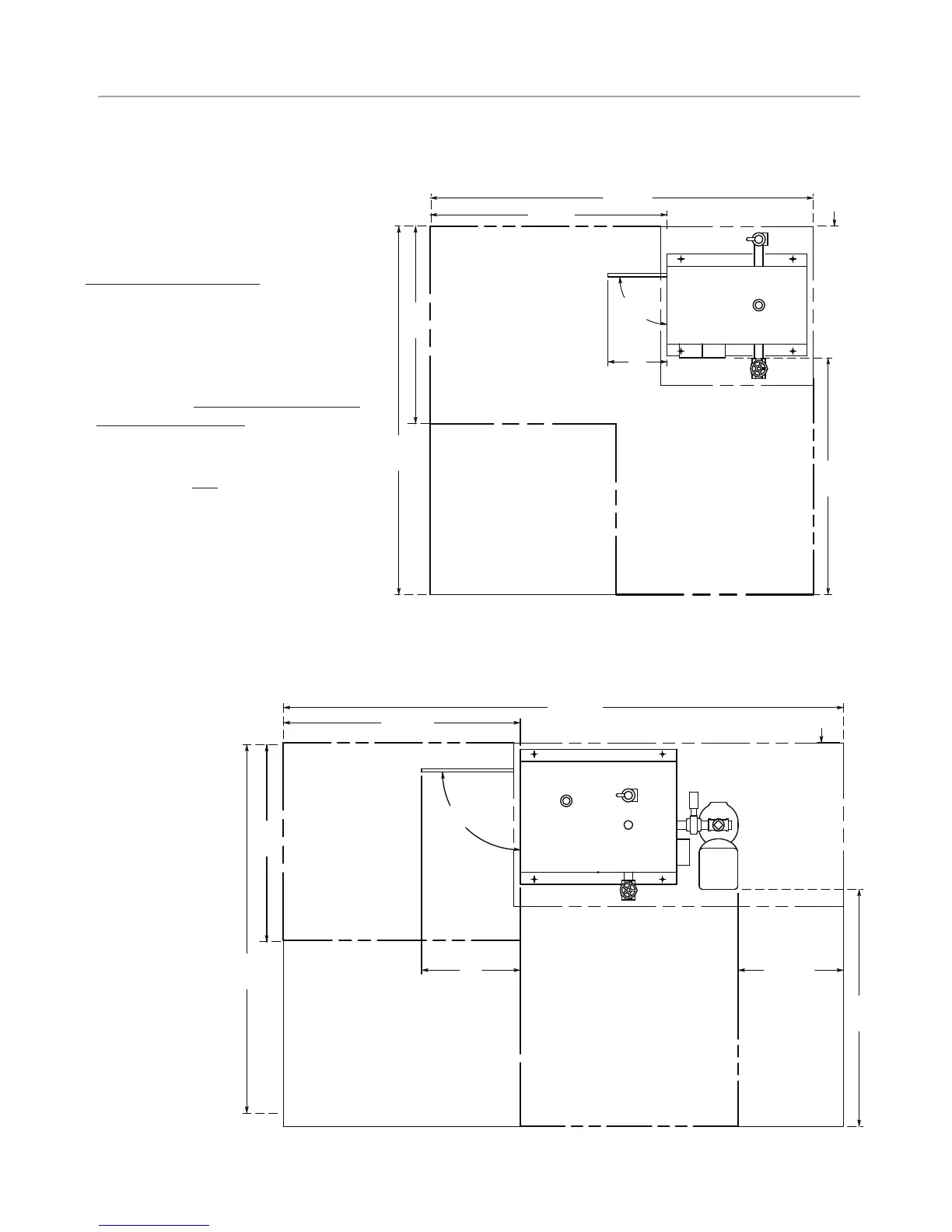
CLEARANCE SPECIFICATIONS
NOTES FOR FIGURE 5-7:
Typical Arrangement of Boiler with
McDonnell Miller.
For illustration purposes only.
Refer to all notes below
1. MM150 Liquid Level Control on CU-2000
and larger models only. CU-360 to CU-
1400 have electronic liquid level controls.
2. IMPORTANT: Minimum Clearance from
Combustible Surfaces:
1" above top of CU generator
Front of CU generator suitable for alcove
installation only.
1" from left side of CU generator.
16" from right side of CU generator.
Type of flooring: “C", suitable for com-
bustible flooring.
1" from rear of CU generator.
3. For ease of servicing, Mr. Steam
recommends a minimum of 36 inches of
clearance all around the CU generator.
1
MIN
36 MIN*
5
8 (TYP)
180
MAX
56
(TYP)
30
MIN*
Panel
Clearance
Service Area
Clearance
Service Area
Clearance
36
MIN*
9
1 MIN**
36 MIN*
85 (TYP)
180
MAX
56
(TYP)
30
MIN*
15
Panel
Clearance
Service Area
Clearance
Service Area
Clearance
36
MIN*
16 MIN*
Figure 5: CU360-1400
Figure 6: CU2000
& CU3000

Related product manuals