EasyManua.ls Logo

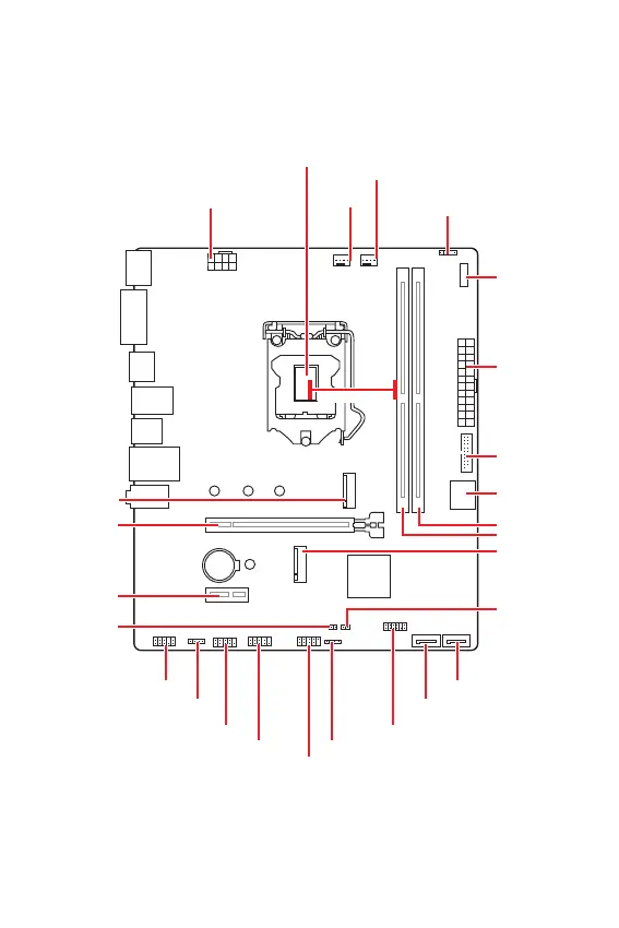
MSI B560M PRO-E - コンポーネントの概要

MSI B560M PRO-E
187 pages
Print Icon
To Next Page IconTo Next Page
To Next Page IconTo Next Page
To Previous Page IconTo Previous Page
To Previous Page IconTo Previous Page
Loading...
8
󴚮󸋖
󴚮󸋖
󱛉󲣿󴉵󸵾󵺏󶮤󸨧󹨨
BAT1
SYS_FAN1
CPU_FAN1

M2_1


PCI_E2
PCI_E1
DIMMA1
DIMMB1
JTPM1

SATA2
SATA1
JAUD1


JBAT1
ATX_PWR1
EZ Debug LED
CPU_PWR1
JUSB2
JUSB1
JFP2
JFP1
JCI1
JCOM1
53.44mm*

Table of Contents

Related product manuals