EasyManua.ls Logo

MSI B560M PRO-E - Übersicht der Komponenten

MSI B560M PRO-E
187 pages
Print Icon
To Next Page IconTo Next Page
To Next Page IconTo Next Page
To Previous Page IconTo Previous Page
To Previous Page IconTo Previous Page
Loading...
9
 

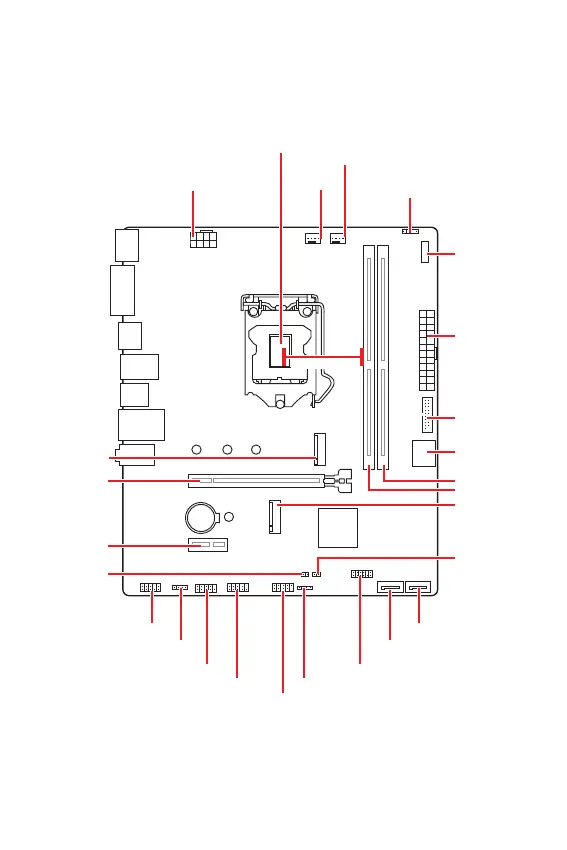
* Abstand zwischen der Mitte der CPU und dem nächsten DIMM-Steckplatz.
BAT1
SYS_FAN1
CPU_FAN1
CPU Sockel
M2_1(optional)
M2_2(optional)
PCI_E2
PCI_E1
DIMMA1
DIMMB1
JTPM1

SATA2
SATA1
JAUD1
JRGB1(optional)
JRAINBOW1 (optional)
JBAT1
ATX_PWR1
EZ Debug LED
CPU_PWR1
JUSB2
JUSB1
JFP2
JFP1
JCI1
JCOM1
53,44mm*
Line-out

Table of Contents

Related product manuals