EasyManua.ls Logo

MSI MS-6339 - Page 7

MSI MS-6339
100 pages
Print Icon
To Next Page IconTo Next Page
To Next Page IconTo Next Page
To Previous Page IconTo Previous Page
To Previous Page IconTo Previous Page
Loading...
CHAPTER 2CHAPTER 2
CHAPTER 2CHAPTER 2
CHAPTER 2
HARDHARD
HARDHARD
HARD
WW
WW
W
ARE INSTARE INST
ARE INSTARE INST
ARE INST
ALLAALLA
ALLAALLA
ALLA
TIONTION
TIONTION
TION
2-3
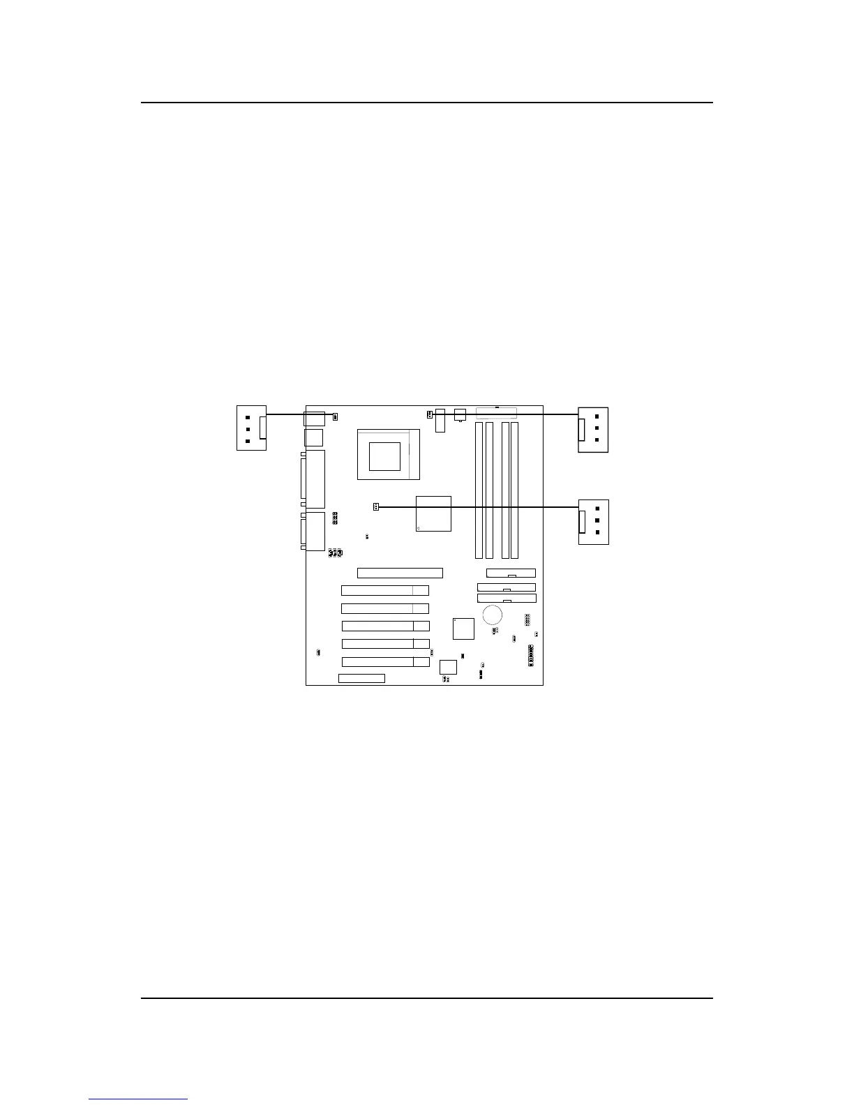
Fan Power Connectors: CPUFAN/PSFAN/SYSFAN
These connectors support system cooling fan with + 12V. It sup-
ports three pin head connector. When connecting the wire to the
connector, always take note that the red wire is the positive and
should be connected to the +12V, the black wire is Ground and
should be connected to GND. If your mainboard has System Hard-
ware Monitor chipset on-board, you must use a specially designed
fan with speed sensor to take advantage of this function.
For fans with fan speed sensor, every rotation of the fan will send out 2
pulses. System Hardware Monitor will count and report the fan rotation
speed.
Note: Always consult vendor for proper CPU cooling fan.
PSFAN
CPUFAN: Processor Fan
PSFAN: Power Supply Fan
SYSFAN: System Fan
CPUFAN
+12V
SENSOR
GND
+12V
GND
Sensor
SYSFAN
+12V
GND
Sensor

Table of Contents

Related product manuals