EasyManua.ls Logo

MTL MTL5024 - MTL5018 Single-Pole, Changeover Relay, Two-Channel, Switch;Proximity Detector with Line Fault Detection and Phase Reversal; MTL5018 AC Single-Pole, Changeover Relay, Two-Channel, Switch;Proximity Detector with Line Fault Detection and Phase Reversal

Default Icon
46 pages
Print Icon
To Next Page IconTo Next Page
To Next Page IconTo Next Page
To Previous Page IconTo Previous Page
To Previous Page IconTo Previous Page
Loading...
16
INM5000-6 Jul 2010
6.7.3 Testing
Make the safe- and hazardous-area connections shown in figure 6.15
and check the status of the output contacts for each channel in turn (with
a 22kΩ resistor connected to the other channel) as shown in table 6.6.
Table 6.6
6.8 MTL5018 single-pole, changeover
relay, two-channel, switch/proximity
detector with line fault detection and
phase reversal
The MTL5018 modules enable each of two safe-area loads to be relay-
controlled by switches or proximity detectors in a hazardous area. Line
fault detection (LFD) and output phase reversal (see 3.1.3) facilities are
included.
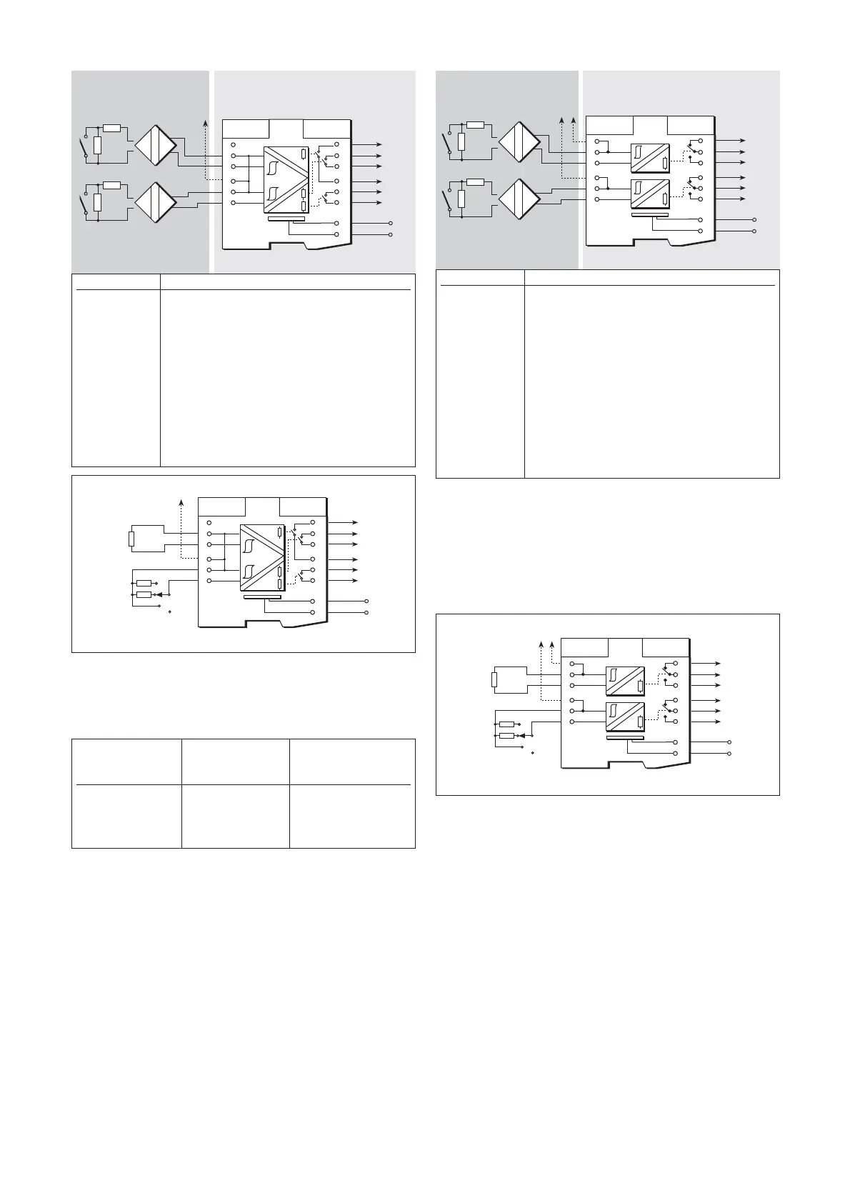
6.8.1 Wiring connections
See figure 6.16 for wiring connections.
Note: Reactive loads must be adequately suppressed.
6.8.2 Line fault detection
(See section 3.1.4 for definition of a line fault)
On each channel, input line faults (open- or short-circuit) are indicated
by an LED and the de-energising of the output.
LFD is enabled/disabled by switches located on the top of the module.
Note that if the LFD facility is enabled for switch inputs, the resistors
shown in figures 6.16 and 6.17 MUST be fitted.
6.8.3 Testing
Make the safe- and hazardous-area connections shown in figure 6.17
and check the status of the output contacts for each channel in turn (with
a 22kΩ resistor connected to the other channel) as shown in table 6.7.
6.9 MTL5018AC single-pole, changeover
relay, two-channel, switch/proximity
detector with line fault detection and
phase reversal
The MTL5018AC modules enable each of two safe-area loads to be
relay-controlled by switches or proximity detectors in a hazardous area.
Line fault detection (LFD) and output phase reversal facilities are included
(see section 3.1.3 ).
6.9.1 Wiring connections
See figure 6.18 for wiring connections.
Note: Reactive loads must be adequately suppressed.
6.9.2 Line fault detection
(See section 3.1.4 for definition of a line fault)
On each channel, input line faults (open- or short-circuit) are indicated
by an LED and the de-energising of the output. LFD is enabled/disabled
by switches located on the top of the module.
Note that if the LFD facility is enabled for switch inputs, the resistors
shown in figures 6.18 and 6.19 MUST be fitted.
Terminal Function
1 Input –ve (Ch 1)
2 Input +ve (Ch 1)
3 Earth leakage detection
4 Input –ve (Ch 2)
5 Input +ve (Ch 2)
7 Line fault detection
8 Output (Ch 2)
9 Output (Ch 2)
10 Line fault detection
11 Output (Ch 1)
12 Output (Ch 1)
13 Supply –ve
14 Supply +ve
6
5
4
3
2
1
7
8
9
10
11
12
13
14
LFD
Vs
Vs+
20 to 35V dc
Ch 2
Ch 1
LFD
LFD
To earth leakage
detector
SW
22kW
680W
a
b
c
open
22kW
+
Ch1
Ch2
+
Output Line-fault
Input relay relay
(11-12, 8-9) (7 & 10)
Open-circuit Open Open
Short-circuit Closed Open
680Ω Closed Closed
22kΩ Open Closed
Terminal Function
1 Input –ve (Ch 1)
2 Input +ve (Ch 1)
3 Earth leakage detection
4 Input –ve (Ch 2)
5 Input +ve (Ch 2)
6 Earth leakage detection
7 Normally-closed contact (Ch 2)
8 Common (Ch 2)
9 Normally-open contact (Ch 2)
10 Normally-closed contact (Ch 1)
11 Common (Ch 1)
12 Normally-open contact (Ch 1)
13 Supply –ve
14 Supply +ve
6
5
4
3
2
1
7
8
9
10
11
12
13
14
Vs
Vs+
20 to 35V dc
Ch 2
Ch 1
To earth leakage
detector
SW
22kW
680W
a
b
c
open
22kW
+
Ch1
Ch2
+
Figure 6.15: Test circuit for MTL5017
Figure 6.17: Test circuit for MTL5018
6
5
4
3
2
1
7
8
9
10
11
12
13
14
LFD
Vs
Vs+
20 to 35V dc
To earth
leakage
detector
22kW
680W
+
Ch 2
22kW
680W
+
Ch 1
LFD
LFD
For contact inputs
resistors must be fitted
Figure 6.14: MTL5017 wiring diagram and connections
Hazardous area Safe area
6
5
4
3
2
1
7
8
9
10
11
12
13
14
Vs
Vs+
20 to 35V dc
To earth leakage
detector
22kW
680W
+
22kW
680W
+
Resistors required only
for line fault detection
Ch 2
Ch 1
Figure 6.16: MTL5018 wiring diagram and connections
Hazardous area Safe area
Artisan Technology Group - Quality Instrumentation ... Guaranteed | (888) 88-SOURCE | www.artisantg.com

Table of Contents

Related product manuals