EasyManua.ls Logo

Nailor D30RE - REE - 5002 Relay Module Fan with 2 Stage Reheat; TROUBLESHOOTING PROCEDURE

Default Icon
48 pages
Print Icon
To Next Page IconTo Next Page
To Next Page IconTo Next Page
To Previous Page IconTo Previous Page
To Previous Page IconTo Previous Page
Loading...
3/11 IOM-AECVAV
Nailor Industries Inc. reserves the right to change any information concerning product or specification without notice or obligation.
Page 9 of 10
TROUBLESHOOTING PROCEDURE
Note: Turn off power before making any wiring changes to the unit.
1. Verify 24 Vac at CSP-5002 controller / actuator terminals "~" (phase) and "-"(ground). Tolerance +20 / -15% (20.4-28.8 Vac). When using
a common transformer for more than one CSP-5002, polarity should be observed.
2. Check correct field wiring from thermostat to terminal block in unit low voltage enclosure. Refer to Nailor control wiring diagram inside
controls enclosure. Ensure all wiring connections are tight and secure.
3. Check tubing from unit inlet flow sensor to the controller / actuator is correct and no leaks. "Hi" side of sensor to "H" on controller / actuator
and "Lo" side of sensor to "L" on controller / actuator.
4. Verify 16 Vdc at CSP-5002 terminals "16 VDC" and "-". Tolerance is 15 to 17 Vdc power supply to thermostat. If not correct, disconnect
thermostat and recheck. If still incorrect, replace CSP-5002 controller / actuator.
5. Check requested minimum and maximum flow settings on terminals "IN" and "-". Refer to Vdc vs. Airflow setting charts at back of this
document. If reading is not what is desired, refer to thermostat calibration procedure.
6. Check actual airflow (live velocity readout) voltage on terminal "OUT" and "-" (0 – 10 Vdc). Use calibration charts provided.
7. Check for damper movement and correct rotation.
a) Review "requested flow" and actual flow" above to determine if unit should be satisfied (within 50 fpm +/- 0.20 Vdc) or driving damper
open or closed.
b) If damper is not moving, verify damper is not stuck at end of travel and has free movement. Use manual release clutch on CSP-5002.
Check CW / CCW rotation jumpers for proper operation. Ensure damper actuator connection is correct and damper can travel fully open to
fully closed within limits of the actuator stroke. Check actuator coupling to damper shaft setscrews are tight.
c) Change "requested flow" to make unit drive opposite direction (verifying correct damper movement). This can be accomplished by
moving thermostat setpoint sliders or:
i) To manually open damper, remove wire from terminal "IN" and jumper terminal "IN" to 16Vdc". This will tell unit to control at full
airflow and the green LED should turn on, driving damper fully open.
ii) To manually close damper, remove wire from terminal "IN" and jumper terminal "IN" to "-" terminal. This will tell unit to control at zero
airflow and the red LED should be on, driving damper fully closed.
Warning: Never jumper terminal "16 Vdc" to "-", as this will cause short and possibly damage the power supply.
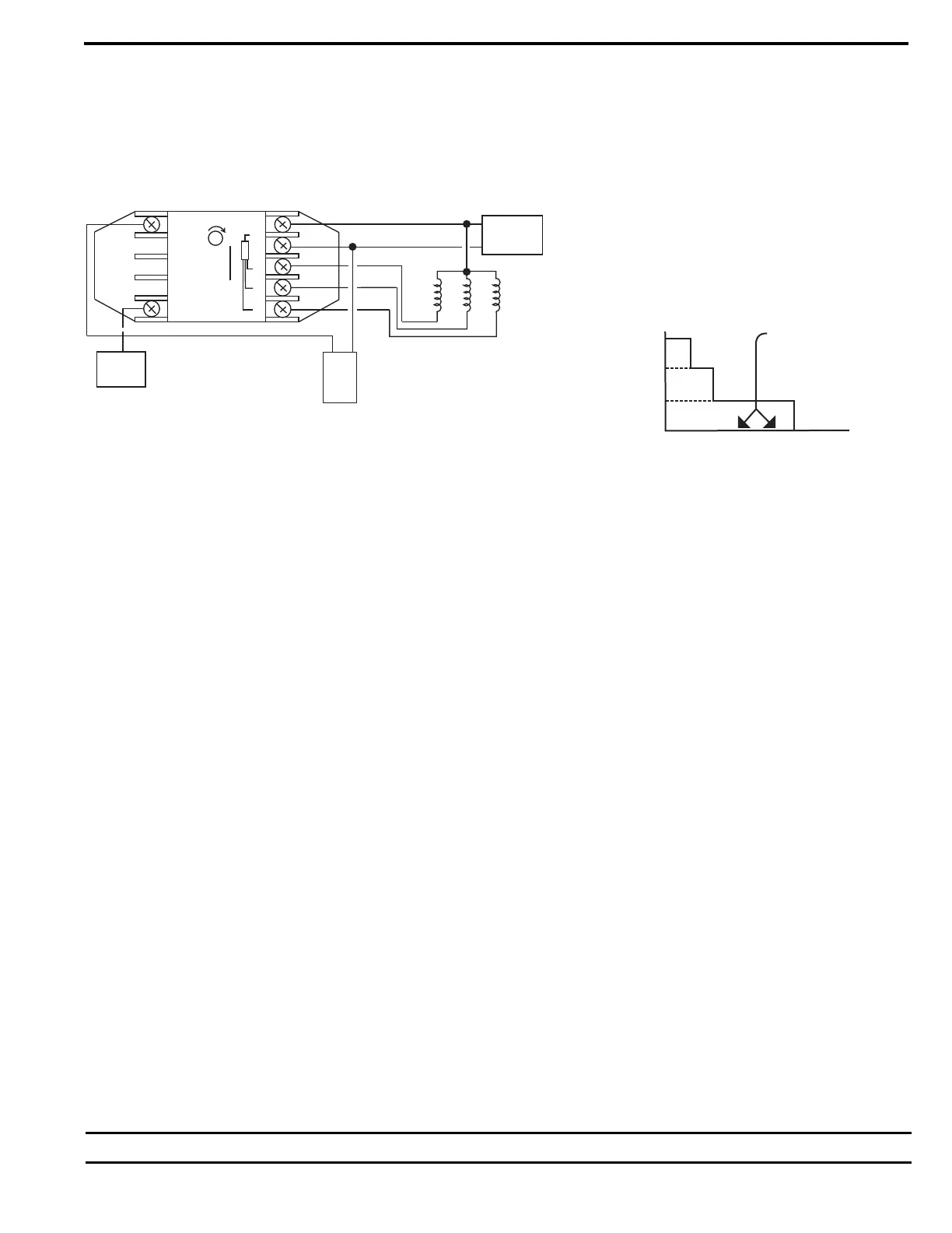
REE – 5002 Relay Module Fan with 2 Stage Reheat
The REE-5002 is used in all parallel flow terminal units, and specific series flow terminal units with the night cycle or setback options. The
relay cycles the fan and activates up to 2 stages of heat in response to a direct acting 0 -10 Vdc thermostat output. The fan start point is
adjustable from 3-8 Vdc which equates to -0.8 to +1.2
O
F,(-0.4 to +0.7
O
C), around setpoint. The factory setting is 4 Vdc (-0.4F below cooling
setpoint / min. primary airflow setting). To field adjust, read the Vdc across terminals "X" and "-". Adjust the potentiometer to Vdc desired
setpoint. The two stages of heat are sequenced to energize after the fan is activated when the desired room temperature continues to
d
ecrease.
CTE-5100 SERIES
THERMOSTAT
DIRECT ACTING
24VAC CONTACTORS
10VA MAX PER STAGE
FAN #1 #2
DC
VOLT
METER
+ -
T
3
USE TERMINAL "X" FOR
MEASURING FAN
TRIP VOLTA GE ONLY
REE-5002
CAUTION
X T
I
N
C
R
~ --
24 VAC
LOAD
CSP-5001
CONTROLLER-ACUATOR
24 VAC ~
24 VAC --
FAN 1 2
KMC
INC CONTROLS
Figure 11. Ree-5002 Relay Module. Fan with 2 stage reheat.
FAN START POINT
ADJUSTABLE
3-8 VOLTS
THERMOSTAT SIGNAL (T3)
(1 VDC SWITCHING DIFFERENTIAL)
S
T
A
G
E
S
FAN
1
1 3 8 VOLT S
2

Related product manuals