EasyManua.ls Logo

Napoleon GPFR40 - Page 6

Napoleon GPFR40
40 pages
Print Icon
To Next Page IconTo Next Page
To Next Page IconTo Next Page
To Previous Page IconTo Previous Page
To Previous Page IconTo Previous Page
Loading...
6
EN
www.napoleongrills.com N415-0390 MAY 09.18
INPUT
MODEL FUEL MAX. INPUT Btu/Hr
VICT1
VICT2
Natural Gas 40, 000
VICT1
VICT2
Propane Gas 40, 000
VICT3 Natural Gas 40, 000
VICT3 Propane Gas 40, 000
GAS INLET PRESSURES
NATURAL PROPANE
Maximum Inlet Pressure 7.0" w.c. 11.0" w.c.
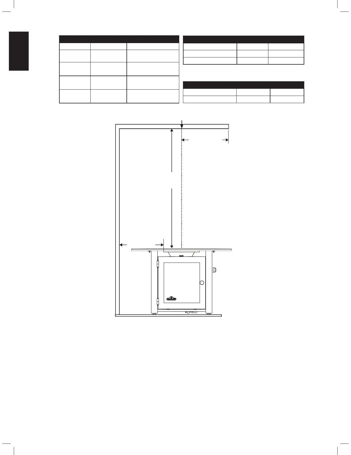
MINIMUM CLEARANCE TO COMBUSTIBLES
INCHES MM
Side Walls 24 610
Top of unit to ceiling 72 1830
ϳϮ
(1830mm)
EdZK&Wd/K&>D
Ϯϰ
;ϲϭϬŵŵͿ
Ϯϰ
;ϲϭϬŵŵͿ
MAXIMUM
KsZ,E'
THE TABLE IS APPROVED FOR USE ON
COMBUSTIBLE FLOORS.

Related product manuals