EasyManua.ls Logo

NEC DTU-70 - Cooling Section

NEC DTU-70
80 pages
Print Icon
To Next Page IconTo Next Page
To Next Page IconTo Next Page
To Previous Page IconTo Previous Page
To Previous Page IconTo Previous Page
Loading...
GWP-G22996
3 - 4
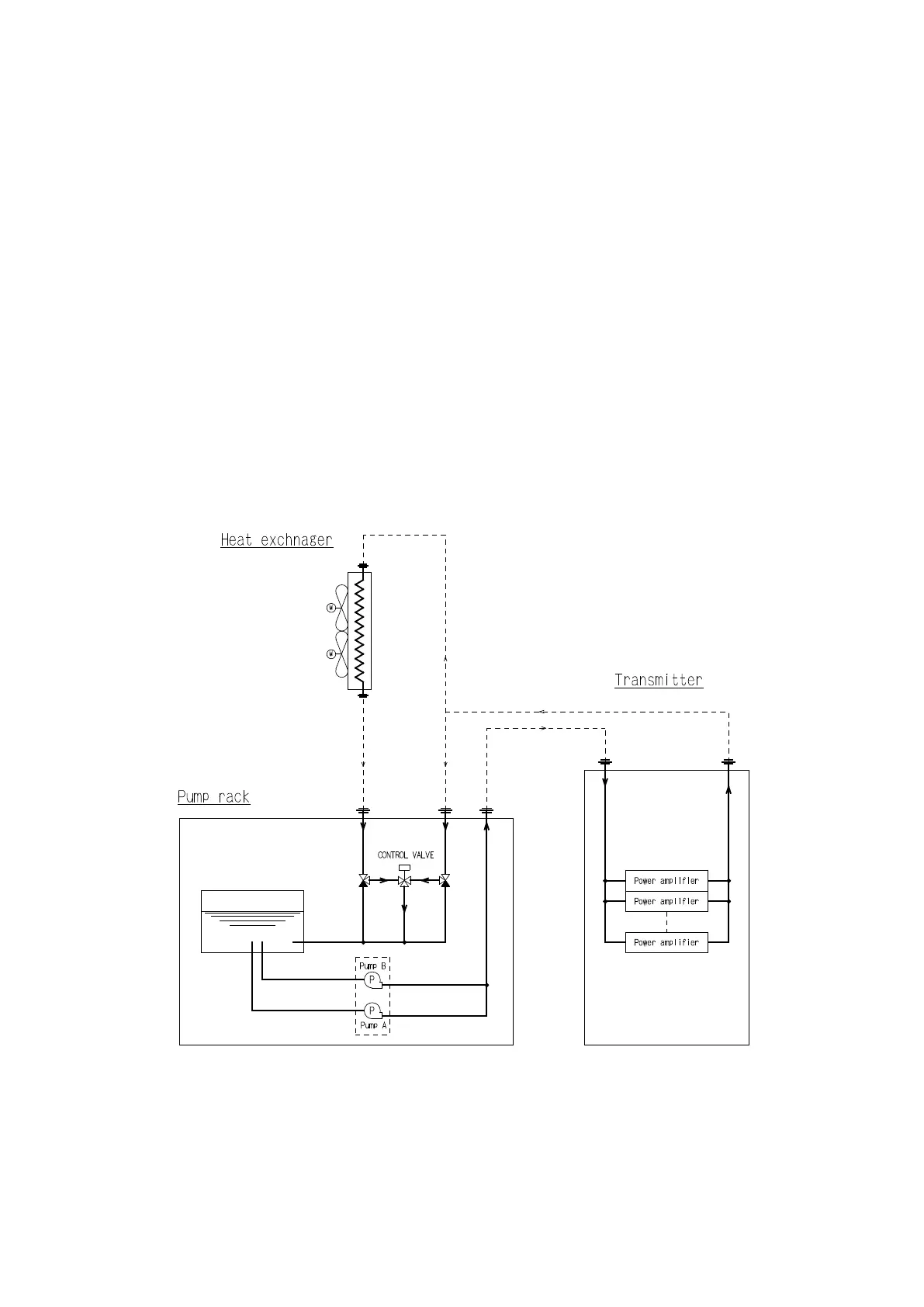
3-3 Cooling Section
This transmitter is cooled with coolant fed from pump rack. The coolant which flows
into the transmitter is branched to cool the absorbed resistors for the power combiner and
then cools the PAs and is discharged, combined again into one route, from the transmitter.
For details, refer to the Instruction Manual of Pump Rack in section 6, and Heat Balance
in 1, General, of Vol. II.
The cooling system below is in passive reserve. The pump can be replaced any time
during operation. Heat generated in power amplifier (the power transistors and the
switching power supply unit), and in the absorbed resistors when power combiners are
unbalanced is removed from the coolant by an external heat exchanger.
Fig.3-2 Block diagram of cooling system in passive reserve