EasyManua.ls Logo

NEC LT265 - Safety Cautions; General Precautions; Electrical and Fire Safety Warnings; Laser Pointer Safety

NEC LT265
7 pages
Print Icon
To Next Page IconTo Next Page
To Next Page IconTo Next Page
To Previous Page IconTo Previous Page
To Previous Page IconTo Previous Page
Loading...
www.necvisualsystems.com LT265 Page 2 of 7
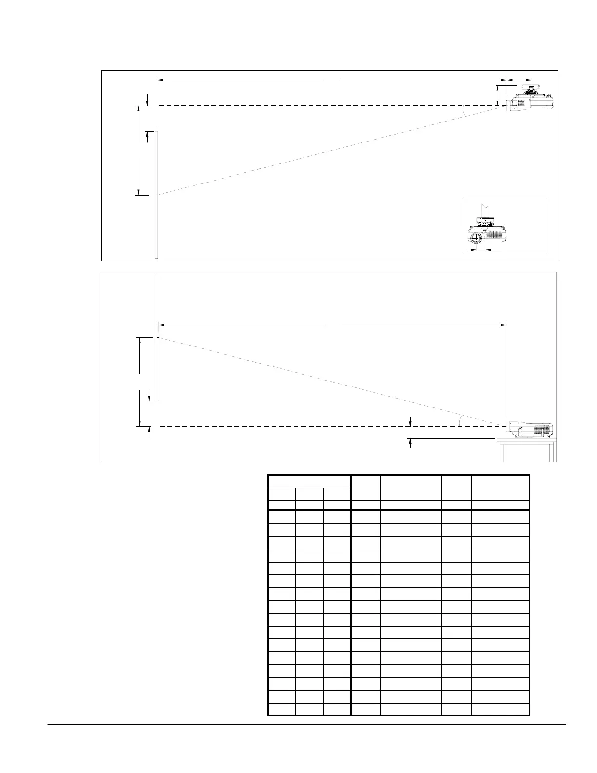
Diagrams and Distance Charts for 4:3 Screens
The following diagrams show the relationship between projector position and the screen. Refer to the chart below for data.
Distances are in inches. For millimeters multiply by 25.4.
Ceiling
Mounted
Desktop
Distance chart for popular 4:3 screens
Note: For screen sizes not indicated on the chart,
use the formulas on page 1.
Screen Top
Throw Distance
Screen Ctr
D
Lens offset from
mount center
α
5.8"
Lens Ctr
B
2.5"
6.5"
C
Screen Bottom
Throw Distance
Screen Ctr
D
α
Lens Ctr
B
C
3.3"
BD
Diag W H wide
-
tele wide
-
tele
inches inches inches inches inches
30 24 18 12.6 45.6
-
56.0 3.6 15.4
-
12.7
60 48 36 25.2 93.5
-
114.1 7.2 15.1
-
12.4
72 57.6 43.2 30.2 112.7
-
137.4 8.6 15.0
-
12.4
84 67.2 50.4 35.3 131.9
-
160.6 10.1 15.0
-
12.4
90 72 54 37.8 141.5
-
172.2 10.8 15.0
-
12.4
100 80 60 42.0 157.4
-
191.6 12.0 14.9
-
12.4
120 96 72 50.4 189.4
-
230.3 14.4 14.9
-
12.3
150 120 90 63.0 237.3
-
288.4 18.0 14.9
-
12.3
180 144 108 75.6 285.3
-
346.6 21.6 14.8
-
12.3
200 160 120 84.0 317.2
-
385.3 24.0 14.8
-
12.3
250 200 150 105.1 397.1
-
482.1 30.1 14.8
-
12.3
300 240 180 126.1 477.1
-
579.0 36.1 14.8
-
12.3
350 280 210 147.1 557.0
-
675.8 42.1 14.8
-
12.3
400 320 240 168.1 636.9
-
772.7 48.1 14.8
-
12.3
450 360 270 189.1 716.8
-
869.5 54.1 14.8
-
12.3
500 400 300 210.1 796.7
-
966.4 60.1 14.8
-
12.3
Screen Size
(4:3)
C
inches
α
degrees

Other manuals for NEC LT265

Related product manuals