EasyManua.ls Logo

NEC NP400 - Ceiling Mounted

NEC NP400
6 pages
Print Icon
To Next Page IconTo Next Page
To Next Page IconTo Next Page
To Previous Page IconTo Previous Page
To Previous Page IconTo Previous Page
Loading...
NEC Display Solutions of America, Inc.
NP400/NP500/NP600 Installation Guide
Ceiling Mounted and Desktop Rev 1.0
www.necdisplay.com NP400/NP500/NP600 Page 2 of 6
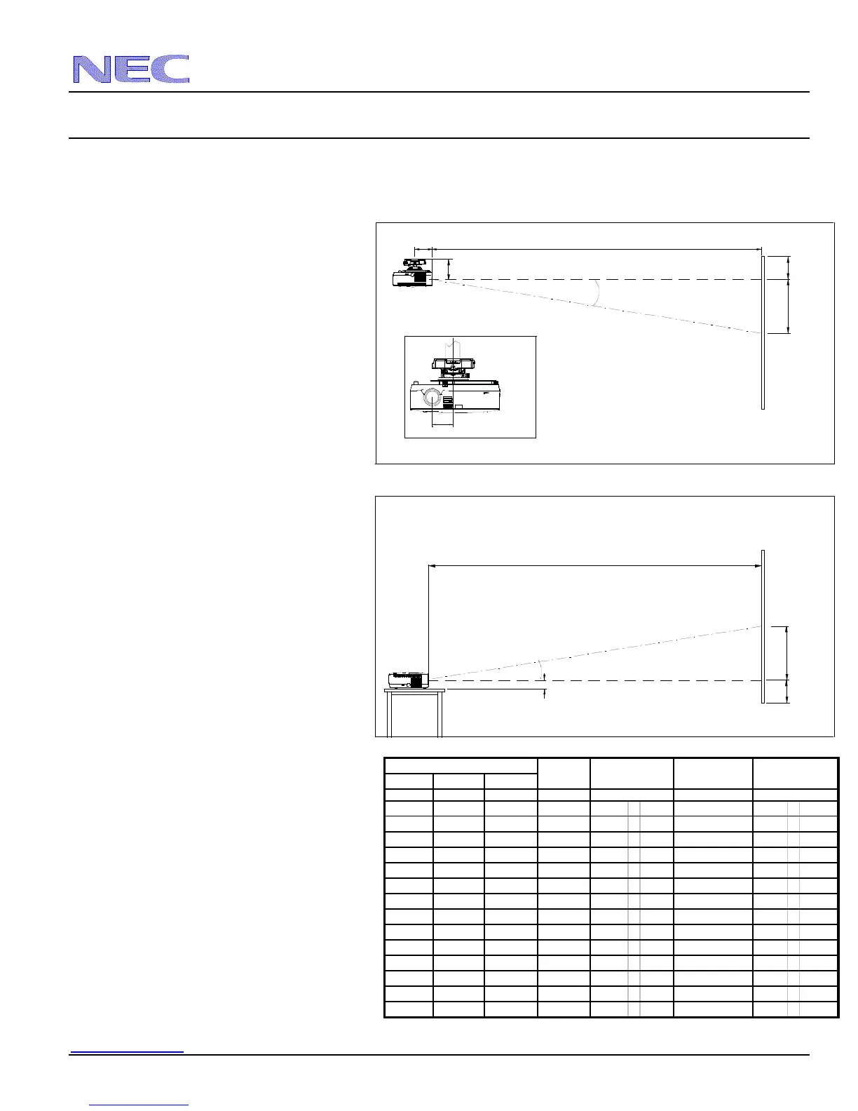
Diagrams and Distance Charts
The following shows the proper relative positions of the projector and screen. Refer to the table to determine the position of
installation.
Distances are in inches. For millimeters multiply by 25.4.
Lens Offset From
Mount Pipe
B
C
Lens Ctr
Screen Ctr
Throw Distance
Screen Bottom
2.22"
C
Throw Distance
Screen Top
4.56"
5.17"
D
B
Lens Ctr
Screen Ctr
D
2.79
Ceiling Mounted
Desktop
Diagonal Width(W) Height (H)
inches inches inches inches
30 24 18 6 35 - 43 9.9 - 8.2
60 48 36 12 73 - 88 9.7 - 8.0
67 53.6 40.2 14 81 - 98 9.7 - 8.0
72 57.6 43.2 15 87 - 106 9.6 - 8.0
84 67.2 50.4 17 102 - 123 9.6 - 8.0
90 72 54 19 110 - 132 9.6 - 8.0
100 80 60 21 122 - 147 9.6 - 8.0
120 96 72 25 147 - 177 9.6 - 8.0
150 120 90 31 184 - 222 9.5 - 8.0
180 144 108 37 221 - 267 9.5 - 8.0
210 168 126 43 258 - 311 9.5 - 7.9
240 192 144 50 296 - 356 9.5 - 7.9
270 216 162 56 333 - 401 9.5 - 7.9
300 240 180 62 370 - 445 9.5 - 7.9
d
egrees
Screen Size (4:3)
-6
i
nc
h
es
-3
B
C
w ide - tele
i
nc
h
es
D
α
w ide - tele
-6
-7
-8
-8
-9
-11
-14
-17
-20
-23
-25
-28
Distance Chart for popular 4:3 screens
Note: For screen sizes not indicated on the projection
tables, use the formulas on page 1.

Other manuals for NEC NP400

Related product manuals