EasyManua.ls Logo

NEC V552 - Page 4

NEC V552
8 pages
Print Icon
To Next Page IconTo Next Page
To Next Page IconTo Next Page
To Previous Page IconTo Previous Page
To Previous Page IconTo Previous Page
Loading...
NEC Display Solutions of America, Inc.
V552 Installation Guide
55” LCD Display Rev 1.0
www.necdisplay.com V552 Page 4 of 8
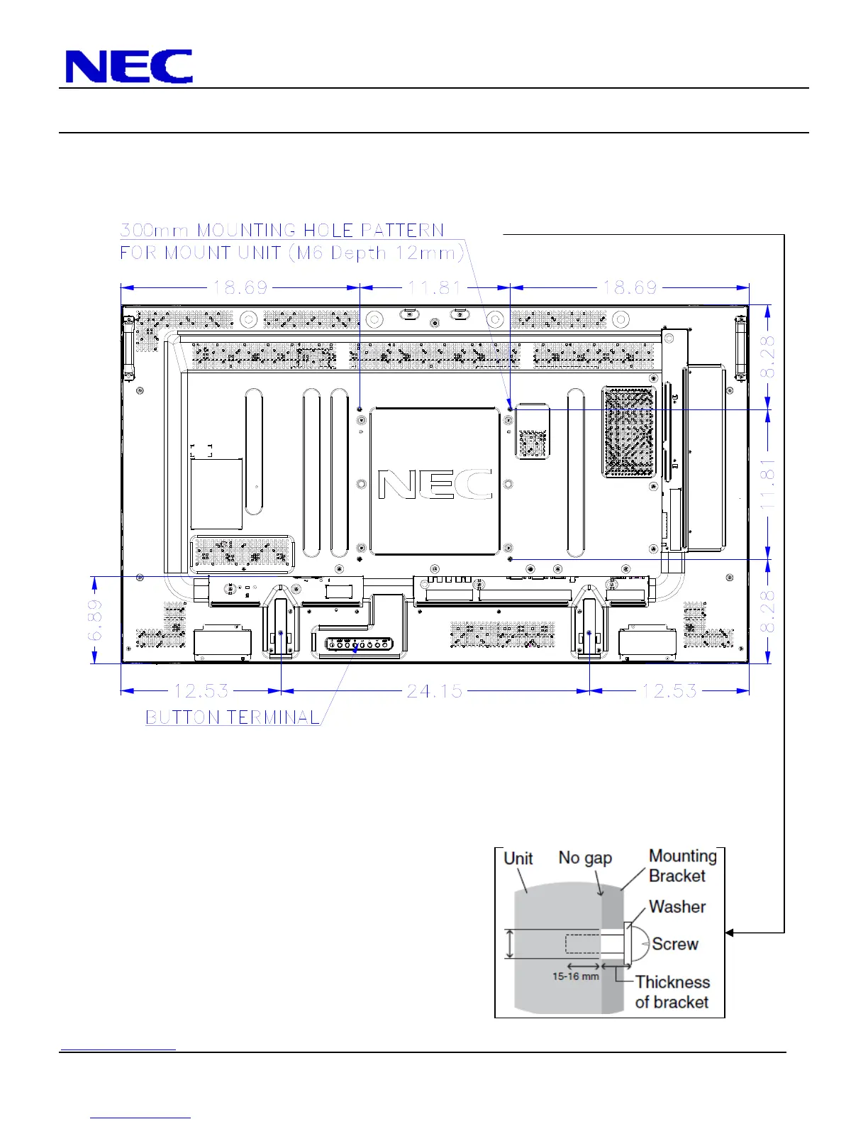
Display dimensions (cont.):

Other manuals for NEC V552

Related product manuals