EasyManua.ls Logo

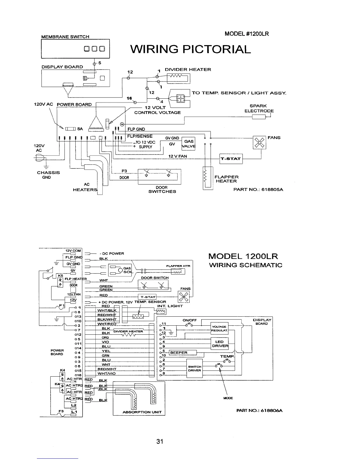
Norcold 1200LR - Wiring Pictorial; Model #1200 LR; Model #1200 LR Wiring Schematic

Norcold 1200LR
31 pages
Print Icon
To Next Page IconTo Next Page
To Next Page IconTo Next Page
To Previous Page IconTo Previous Page
To Previous Page IconTo Previous Page
Loading...

Related product manuals